1 résultats
Vous rêvez d'un cadre de vie paisible, verdoyant et proche de tout ? Découvrez ce projet complet terrain + maison situé sur un magnifique terrain d'environ 1 000 m² à Saint-Jean-d'Illac. Idéalement placé, à seulement quelques minutes de Pessac Magonty, du golf et de Cestas Gazinet, ce terrain vous offre calme, verdure et proximité des commerces, écoles et grands axes. Le projet : Une maison GIB Construction de 90 m² habitables avec 3 chambres et garage, pensée pour offrir confort, fonctionnalité et luminosité à votre famille. Les plans et l'implantation restent entièrement personnalisables selon vos envies, afin de créer une maison qui vous ressemble. Les avantages du projet : - Réseaux en bordure de terrain - Étude géotechnique G1 réalisée - Accompagnement complet de la conception à la remise des clés Garantie du savoir-faire GIB Construction : design, qualité et suivi personnalisé Un projet pensé pour vous, prêt à accueillir votre famille dans un cadre de vie d'exception. Votre futur commence ici — avec GIB Construction. Contactez Frédéric Dupont au 06 27 57 64 16 pour donner vie à votre projet dès aujourd'hui !
Autres annonces à proximité de Saint-Jean-d'Illac (33127) avec vos critères
Quartier hastignan, je vous propose ce terrain de 650 m² sur la commune de saint médard en jalles pour concrétiser votre projet de construction. Ce terrain donne la possibilité de construire cette magnifique contemporaine de 90 aux normes re 2020 vous offrant 3 grandes chambres, une vaste pièce de vie idéalement orientée, cellier, sdb, pac réversible, larges baies vitrées motorisées, plan personnalisable selon vos préférences. Contactez christophe camillieri (o6.15. O6.7o. 79), votre conseiller gib construction au pavillon de castelnau de médoc, 2 route d'avensan, ou de convenir d'un rdv à votre domicile pour une étude (financement, conception, administratif…). Profitez des garanties du contrat de construction de maison individuelle (ccmi, qui vous assure un prix ferme et définitif), du dynamisme et de la notoriété de gib construction présent depuis plus de 15 ans sur ce secteur nombreux autres choix de terrains qui vous attendent également à la demande. Terrain sélectionné via l'un de nos partenaires fonciers. Photos non contractuelles, non soumis au dpe.
Découvrez Maison Essentiel ! Votre maison de 90 m², 3 chambres et garage, livrée en 1 an et pour 125 900€ tout compris ! Composée de 3 belles chambres avec placard, une grande salle de bain, le moindre espace a été optimisé dans cette maison. Un hall d'entrée vous accueil, desservant WC et cellier. Il vous donnera accès à un séjour de presque 45 m², baigné de lumière avec ses grandes ouvertures. Les engagements Maison Essentiel : - Dépôt de PC en 1 mois - Ouverture du chantier en 1 mois - Construction en 10 mois Un contrat carré, une maison carrée, et des délais maîtrisés ! Contactez Mathieu OSPITAL au O6 45 4O 85 68 pour lancer votre projet dès aujourd'hui ! Proposition réalisée sur un des terrains de nos partenaires fonciers.
Maisons d’en France vous propose ce beau projet de construction à Cestas sur un grand lot viabilisé de 810 m². Le lotissement se trouve dans un lieu ultra privilégié ! À seulement 20 minutes de Bordeaux, à 30 minutes du bassin d’Arcachon, et à 5 minutes de la plage du Lac Vert, dans une petite ville bordée de toutes parts par la forêt, vous avez tout ! La maison que nous proposons sur ce terrain est résolument moderne avec ses beaux volumes et son efficacité énergétique à la pointe. Elle dispose d’un espace de vie total de 103 m², avec garage attenant, et se compose : - D’un espace jour proposant une spacieuse pièce de vie avec cuisine ouverte de 48 m². - D’un espace nuit composé de 3 chambres, dont 2 avec placards et 1 suite parentale avec sa salle d'eau indépendante. La maison est équipée d’une climatisation réversible alimentée par une pompe à chaleur performante, idéale pour un confort optimal été comme hiver. Ce projet est une proposition afin d’explorer des possibilités. L’ensemble est entièrement modifiable selon vos souhaits : plan, prestations, mode de chauffage, revêtements, etc. Nous avons également d’autres lots que vous pouvez sélectionner pour que le terrain s’adapte parfaitement à votre maison et style de vie. Ce projet inclut : - La maison. - Le terrain. - La viabilisation. - Une Assurance Dommages Ouvrage. À noter : Les travaux de terrassement, les raccordements et les frais de notaire ne sont pas inclus. Pour plus d’informations et échanger autour de votre projet, contactez votre conseiller Samuel COLLARD au 06 70 08 48 05. Terrain proposé en collaboration avec notre partenaire foncier, sous réserve de disponibilité. Nous ne sommes pas mandatés pour la vente de ce terrain. Ref : SCO_CES_22.

Recevez en temps réel les dernières annonces correspondant à votre recherche
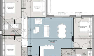
Villa contemporaine haut standing – Projet sur mesure – Pessac Toctoucau Découvrez une villa moderne signée GIB Construction, entièrement personnalisable pour créer un lieu de vie unique, adapté à votre style et à vos exigences. Les plus : - Architecture contemporaine, volumes lumineux et séjour traversant. - Suite parentale en rez-de-chaussée pour un confort quotidien. - Chambres modulables selon vos besoins (enfants, bureau, invités…). - Mezzanine optionnelle : espace pro ou détente. Garage ou carport au choix, terrasse couverte, extérieurs aménageables (piscine, jardin paysager…). Excellence & confort : * Conception RE2020, prestations haut de gamme, menuiseries aluminium, volets électriques. * Projet 100 % sur mesure : matériaux, ambiances, agencements… tout se choisit. Emplacement recherché : Quartier calme de Pessac Toctoucau, proche des commodités et des grands axes.
Laissez vous séduire par cette maison moderne à étage de 126 m² parfaitement pensée pour allier confort et praticité. Ses espaces lumineux, son agencement optimisé et son garage en font un projet très intéressant pour le secteur. Situé à 15mn de Bordeaux sur la charmante commune de Pessac, dans un environnement agréable et proche de toutes les commodités, venez découvrir ce projet à partir de 472 500€ (terrain + maison). Me contacter pour plus de renseignements : O671561210 - GIB Construction.
Laissez vous séduire par cette maison moderne à étage de 92 m² parfaitement pensée pour allier confort et praticité. Ses espaces lumineux, son agencement optimisé et son garage en font un projet très intéressant pour le secteur. Situé à 15mn de Bordeaux et à 35mn du Bassin sur la commune de Pessac, dans un environnement agréable et proche de toutes les commodités, ce projet est proposé à partir de 375 800€ (terrain + maison). Me contacter pour plus de renseignements : O671561210 - GIB Construction.
Laissez vous séduire par cette maison moderne à étage de 95 m² parfaitement pensée pour allier confort et praticité. Ses espaces lumineux, son agencement optimisé et son garage en font un projet très intéressant pour le secteur. Situé à 15mn de Bordeaux sur la charmante commune de Mérignac, dans un environnement agréable et proche de toutes les commodités, ce projet est proposé à partir de 396 500€ (terrain + maison). Me contacter pour plus de renseignements : O671561210 - GIB Construction.
Exceptionnel sur le bassin d' arcachon, au bord de l'eau, ce magnifique terrain à bâtir de 415 m² sur la commune de lanton vous permettra de réaliser votre futur projet de construction. Cette parcelle "les pieds dans l'eau" se situe à quelques minutes de tous les commerces et de toutes les commodités. C''est le moment d'investir dans votre future résidence principale avec le groupe gib construction qui vous propose cette belle villa de 100 m² habitables composée de 4 belles chambres, d'un grand salon / séjour / cuisine, d'un garage, d'un système de chauffage pompe à chaleur air / air et aux dernières normes re 2020. Le prix pour l'ensemble du projet est de 486000 € hors frais. Profitez également des taux d'intérêts, de notre accompagnement tout au long de votre projet et de toutes les garanties apportées par notre groupe gib construction dans le cadre d'un contrat de construction de maisons individuelles. Tous nos modèles sont personnalisables en fonction de vos souhaits et de vos envies. De nombreux terrains vous attendent. Contactez christophe pour convenir d'un rendez-vous à votre domicile ou à notre pavillon à la teste de buch. Christophe burtin technico-commercial gib / essentiel / hexha tél : o6 2o 77 44 18.
Maison neuve lieu-dit cassy-nord – 325 000 € terrain + construction pc accepté et purgé de tout recours vous rêvez d'une maison moderne, lumineuse et facile à vivre ? Découvrez cette belle maison neuve de 91,89 m² re2020 sur une parcelle de 450 m², modernité d'une construction neuve et un budget maîtrisé. Les atouts : un espace de vie traversant de plus de 43 m², baigné de lumière naturelle 3 chambres confortables (entre 11 et 12 m² chacune) salle de bain, wc séparé, cellier et entrée avec placard intégré menuiseries alu ral 7016 (gris anthracite) carrelage 60x60, faïence et sanitaires inclus maison livrée prête à décorer : il ne vous restera plus qu'à y mettre votre touche personnelle prix : 325 000 € (terrain + construction) contactez géraldine par téléphone o675710291 dès maintenant pour découvrir ce projet et concrétiser votre rêve immobilier ! Gib construction, 2ème génération de constructeurs bâtisseurs en gironde, 19 agences de proximité dans le sud-ouest pour vous accompagner dans votre projet personnalisé sur-mesure.
Essentiel, nouvelle marque du groupe GIB - Maison neuve livrée en seulement 10 mois (délais contractuels), carrelage, faïences, sanitaires inclus, prix ferme et définif, sans surprise. Vous rêvez d'une maison moderne, lumineuse et facile à vivre ? Découvrez cette belle maison neuve de 60 m² RE2020 sur une parcelle de 450 m², modernité d'une construction neuve et un budget maîtrisé. 2 chambres, salle d'eau, WC séparé, pièce de vie de plus de 33 m². Contactez Géraldine par téléphone O675710291 dès maintenant pour découvrir ce projet et concrétiser votre rêve immobilier ! GIB Construction, 2ème génération de constructeurs bâtisseurs en GIRONDE, 19 agences de proximité dans le Sud-Ouest pour vous accompagner dans votre projet personnalisé sur-mesure.
Exceptionnel pour les amoureux de la nature, à quelques minutes des plages océanes et de la rocade bordelaise, ce magnifique terrain à bâtir de 725 m² sur la commune du temple n' attend plus que vous pour votre projet de construction. Grâce au retour du prêt à taux zéro, c'est le moment d'investir dans votre future résidence principale avec le groupe gib construction qui vous propose cette belle villa de 90 m² habitables composée de 3 belles chambres, d'un grand salon / séjour / cuisine, d'un système de chauffage pompe à chaleur air / air et aux dernières normes re 2020. Le prix pour l'ensemble du projet est de 249500 € hors frais. Profitez également des taux d'intérêts, de notre accompagnement tout au long de votre projet et de toutes les garanties apportées par notre groupe gib construction dans le cadre d'un contrat de construction de maisons individuelles. Tous nos modèles sont personnalisables en fonction de vos souhaits et de vos envies. De nombreux terrains vous attendent. Contactez christophe pour convenir d'un rendez-vous à votre domicile ou à notre pavillon à la teste de buch. Christophe burtin technico-commercial gib / essentiel / hexha tél : o6 2o 77 44 18.
Exceptionnel sur le bassin d'arcachon nord et proche des plages, ce joli terrain à bâtir de 714 m² sur la commune d'audenge vous permettra de réaliser votre futur projet de construction. Cette parcelle se situe à quelques minutes de tous les commerces, des écoles, du collège et de la gare de biganos. Vous pourrez profiter de cette belle et grande piscine extérieure à l'eau de mer et des pistes cyclables qui vous mèneront tout autour du bassin. Grâce au retour du prêt à taux zéro, c'est le moment d'investir dans votre future résidence principale. Gib construction vous propose cette belle villa de 85 m² habitables composée de 3 belles chambres, d'un grand salon / séjour / cuisine, d'un garage, d'un système de chauffage pompe à chaleur air / air et aux dernières normes re 2020. Le prix pour l'ensemble du projet est de 339800 € hors frais. Profitez également de la baisse des taux d'intérêts, du retour du prêt à taux zéro et de toutes les garanties apportées par gib construction dans le cadre d'un contrat de construction de maison individuelle. Tous nos modèles sont personnalisables en fonction de vos souhaits et de nombreux autres terrains vous attendent. Contactez christophe pour convenir d'un rendez-vous à votre domicile ou à notre pavillon de la teste de buch afin de vous accompagner tout au long de votre projet. Christophe burtin technico-commercial gib / hexha tél : o6 2o 77 44 18.
Exceptionnel sur le bassin d' arcachon, proche des plages, ce magnifique terrain à bâtir de 800 m² viabilisé sur la commune d'audenge vous permettra de réaliser votre futur projet de construction. Cette parcelle se situe à quelques minutes de tous les commerces, d'un supermarché, des écoles, du port, de la piscine et base de loisirs si prisée en période estivale. Grâce au retour du prêt à taux zéro, c'est le moment d'investir dans votre future résidence principale, le groupe gib construction vous propose sa nouvelle gamme essentiel. Cette belle villa de 90 m² habitables est composée de 3 belles chambres, d'un grand salon / séjour / cuisine, d'un système de chauffage pompe à chaleur air / air et aux dernières normes re 2020. Le prix pour l'ensemble du projet est de 389600 € hors frais. Profitez également des taux d'intérêts attractifs, de notre accompagnement tout au long de votre projet et de toutes les garanties apportées par notre groupe gib construction dans le cadre d'un contrat de construction de maisons individuelles. C'est le moment pour investir. Tous nos modèles sont personnalisables en fonction de vos souhaits et de vos envies. De nombreux terrains vous attendent. Contactez christophe pour convenir d'un rendez-vous à votre domicile ou à notre pavillon à la teste de buch. Christophe burtin technico-commercial gib / essentiel / hexha tél : o6 2o 77 44 18.
Maisons d’en France vous propose ce projet de construction à Audenge sur un beau terrain viabilisé de presque 1000 m². Profitez de l’ambiance magique d’Audenge avec son petit port et son parc naturel au bord du bassin, à seulement 45 minutes de bordeaux et à 30 minutes des plages océanes proches du Cap Ferret ! La maison que nous proposons sur ce terrain est une belle maison familiale et possède une efficacité énergétique très performante. Elle dispose d’un espace de vie total de 128 m², avec un garage attenant, et se compose : - D’un espace jour proposant une spacieuse pièce de vie avec cuisine ouverte de presque 50 m² et un cellier. - D’un espace nuit composé d’une suite parentale avec dressing et salle d’eau personnelle, et de 4 chambres avec placards intégrés. La maison possède les meilleures prestations : - Volets roulants électriques domotiques contrôlables depuis un tableau de commande dans la maison, ou son téléphone ; - Chauffage gainable, alimenté par une pompe à chaleur, avec des bouches de soufflage au plafond, permettant de régler la température de chaque pièce individuellement; Ce projet est une proposition afin d’explorer des possibilités. L’ensemble est entièrement modifiable selon vos souhaits : plan, prestations, mode de chauffage, revêtements, etc. Nous avons également d’autres lots que vous pouvez sélectionner pour que le terrain s’adapte parfaitement à votre maison et style de vie. Ce projet inclut : - La maison. - Le terrain. - La viabilisation. - Une Assurance Dommages Ouvrage. À noter : Les travaux de terrassement, les raccordements et les frais de notaire ne sont pas inclus. Pour plus d’informations et échanger autour de votre projet, contactez votre conseiller Samuel COLLARD au O6 70 08 48 05. Terrain proposé en collaboration avec notre partenaire foncier, sous réserve de disponibilité. Nous ne sommes pas mandatés pour la vente de ce terrain. Ref : SCO_AUD_42.
Maisons d’en France vous propose ce projet de construction à Audenge sur un beau terrain viabilisé de presque 1000 m². Profitez de l’ambiance magique d’Audenge avec son petit port et son parc naturel au bord du bassin, à seulement 45 minutes de bordeaux et à 30 minutes des plages océanes proches du Cap Ferret ! La maison que nous proposons sur ce terrain allie parfaitement tradition et modernité avec sa charpente extérieure bois et colombages modernes, associée à une efficacité énergétique de pointe. Elle dispose d’un espace de vie total de 136 m², avec un garage attenant, un abri voiture, une terrasse couverte, et se compose : - D’un espace jour proposant une spacieuse pièce de vie avec cuisine semi ouverte de 60 m² et un cellier. - D’un espace nuit composé de 4 chambres avec placards. Cette maison propose les meilleures prestations : - Volets roulants électriques domotiques contrôlables depuis un tableau de commande dans la maison, ou son téléphone ; - Chauffage gainable, alimenté par une pompe à chaleur, avec des bouches de soufflage au plafond, permettant de régler la température de chaque pièce individuellement ; - Menuiseries et volets roulants tous en aluminium pour allier design, légèreté et robustesse. Ce projet est une proposition afin d’explorer des possibilités. L’ensemble est entièrement modifiable selon vos souhaits : plan, prestations, mode de chauffage, revêtements, etc. Nous avons également d’autres lots que vous pouvez sélectionner pour que le terrain s’adapte parfaitement à votre maison et style de vie. Ce projet inclut : - La maison. - Le terrain. - La viabilisation. - Une Assurance Dommages Ouvrage. À noter : Les travaux de terrassement, les raccordements et les frais de notaire ne sont pas inclus. Pour plus d’informations et échanger autour de votre projet, contactez votre conseiller Samuel COLLARD au O6 70 08 48 05. Terrain proposé en collaboration avec notre partenaire foncier, sous réserve de disponibilité. Nous ne sommes pas mandatés pour la vente de ce terrain. Ref : SCO_AUD_37.
Maison 90 m² habitable, 3 chambres, cellier, espace de vie traversant d'environ 45 m² sur terrain de 714 m². Zone UC du PLU emprise 30 %. (Plain-pied ou étage partiel possible.) Audenge combine calme, nature, proximité du littoral et cadre de vie idéal. À quelques minutes seulement du centre-ville avec toutes commodités, écoles, commerces, services et vie locale accessibles rapidement. À deux pas du Domaine de Certes et Graveyron, zone naturelle protégée, idéale pour les promenades, les balades à vélo ou les sorties nature en famille. Accès facile au reste du Bassin : À 25mn d'Arcachon, parfait pour profiter des plages et activités nautiques quand bon vous semble. Dépôt de PC immédiat. Constructeur de maisons individuelles sur mesure, tous nos plans sont modifiables selon vos besoins et vos envies. Nous vous avons sélectionné ce terrain par l'intermédiaire de nos partenaires fonciers dans le cadre d'un projet avec GIB CONSTRUCTION. Pour plus de renseignements, vous pouvez contacter Géraldine par téléphone O675710291. GIB Construction, 2ème génération de constructeurs bâtisseurs en GIRONDE, 19 agences de proximité dans le Sud-Ouest pour vous accompagner dans votre projet personnalisé sur-mesure.
Maison Neuve prête à Habiter ! FRAIS DE NOTAIRES REDUITS - 3,5% Dans un des quartiers les plus recherchés de la commune, au calme et en bordure de zone naturelle, sans vis-à-vis. Cette maison se compose de 5 belles chambres, réparties comme suit : - Un premier coin nuit composé de 3 chambres, une grande salle de bain avec baignoire et double vasque, un W. C. séparé avec Lave-Main. Les volumes sont généreux et chaque chambre dispose de son placard. Deux d'entre elles donnent côté jardin, un espace parents, à l'opposé, composé d'une grande chambre avec dressing et salle d'eau attenante. - Deux chambres, bureaux supplémentaires sont attenants au salon, permettant le télétravail sans se couper de la vie du domicile. La pièce à vivre développe 60 m², avec de grandes ouvertures lumineuses. Un grand cellier de 8 m² est attenant à la cuisine, et donne également accès au DOUBLE GARAGE de 30 m² ! Le système de chauffage, économe et discret, vous garantira une température optimale en été comme en hiver. Au total, 164 m² intelligemment conçu pour que chacun trouve son espace. Le Terrain de 1550 m² est entièrement clôturé, avec un pavage en granit pour stationner plusieurs véhicules dont deux à l'abris dans le garage. À l'arrière, une terrasse en bois exotique entoure la piscine chauffée, prête à vous rafraîchir pour l'été face aux arbres protégés Contactez Mathieu Ospital au O6 45 4O 85 68 pour plus d'informations et visites.
Maison Neuve prête à Habiter ! FRAIS DE NOTAIRES REDUITS - 3,5% Dans un des quartiers les plus recherchés de la commune, au calme et en bordure de zone naturelle, sans vis-à-vis. Cette maison se compose de 5 belles chambres, réparties comme suit : - Un premier coin nuit composé de 3 chambres, une grande salle de bain avec baignoire et double vasque, un W. C. séparé avec Lave-Main. Les volumes sont généreux et chaque chambre dispose de son placard. Deux d'entre elles donnent côté jardin, un espace parents, à l'opposé, composé d'une grande chambre avec dressing et salle d'eau attenante. - Deux chambres, bureaux supplémentaires sont attenants au salon, permettant le télétravail sans se couper de la vie du domicile. La pièce à vivre développe 50 m², avec de grandes ouvertures lumineuses. Un grand cellier de 8 m² est attenant à la cuisine, et donne également accès au Carport double de 30 m². Le système de chauffage, économe et discret, vous garantira une température optimale en été comme en hiver. Au total, 140 m² intelligemment conçu pour que chacun trouve son espace. Le Terrain de 765 m² est entièrement terminé, avec un pavage en granit pour stationner plusieurs véhicules dont deux à l'abris sous le carport. À l'arrière, une terrasse en bois exotique entoure la piscine chauffée, prête à vous rafraîchir pour l'été. Contactez Mathieu Ospital au O6 45 4O 85 68 pour plus d'informations et visites.
Maison Neuve prête à Habiter ! FRAIS DE NOTAIRES REDUITS - 3,5% Dans un des quartiers les plus recherchés de la commune, au calme et en bordure de zone naturelle, sans vis-à-vis. Cette maison se compose de 4 belles chambres, réparties comme suit : - Un premier coin nuit, espace enfant, composé de 3 chambres, une grande salle de bain avec baignoire et double vasque, un W. C. séparé avec Lave-Main. Les volumes sont généreux et chaque chambre dispose de son placard. Deux d'entre elles donnent côté jardin, vue sur la piscine ! - Un espace parents, à l'opposé, composé d'une grande chambre avec dressing et salle d'eau attenante. Un deuxième W. C. est dans cet espace. La pièce à vivre développe 50 m², avec de grandes ouvertures lumineuses. Un grand cellier de 8 m² est attenant à la cuisine, et donne également accès au Carport. Le système de chauffage, économe et discret, vous garantira une température optimale en été comme en hiver. Au total, 123 m² intelligemment conçu pour que chacun trouve son espace. Le Terrain de 700 m² est entièrement terminé, avec un pavage en granit pour stationner plusieurs véhicules dont deux à l'abris sous le carport. À l'arrière, une terrasse en bois exotique entoure la piscine chauffée, prête à vous rafraîchir pour l'été. Contactez Mathieu Ospital au O6 45 40 85 68 pour plus d'informations et visites.
Découvrez ce projet de construction dans un quartier neuf de maisons individuelles, idéal pour un premier achat ou un investissement sécurisé. Maison de 90 m² optimisée – Gamme Essentiel Dépôt de permis en 1 mois Ouverture du chantier 1 mois après la fin des clauses suspensives Livraison garantie en 10 mois maximum Maison prête à décorer Il ne vous restera plus qu'à personnaliser votre intérieur : peintures, sols des chambres et cuisine à installer. De quoi créer un espace à votre image ! Le terrain : Terrains plats, bornés et viabilisés 250 m² d'emprise bâtie : idéale pour une maison de plain-pied Quartier neuf, calme et valorisant Démarrage rapide : Votre construction peut commencer dans 4 mois ! Emplacement pratique : Écoles à 1,1 km Boulangerie à 800 m Supermarché à 2,6 km Arrêt de bus à 400 m Rocade à 6 km Tram D / Parc relais de Cantinolle à 3 km Contact : NOYRE Geoffrey O6 27 71 12 19.
Projet de construction sur la commune du barp – maison 2 chambres (60 m²) – livraison garantie en 10 mois profitez d'un projet de construction sur mesure, idéal pour les primo-accédants comme pour les investisseurs, alliant rapidité, sécurité et confort. Caractéristiques du projet : • maison neuve 2 chambres • surface : 60 m² • sans garage, mais possibilité de l'ajouter ultérieurement • délai de construction contractuel exceptionnel : seulement 10 mois – bien plus rapide que les délais habituels cette opportunité unique vous permet d'accéder rapidement à votre futur logement ou investissement, dans un projet moderne et parfaitement pensé. Le calendrier est garanti, vous savez exactement quand votre maison sera prête à accueillir ses occupants. Prix du projet : à partir de 209 010 € (terrain + maison, hors frais annexes – selon disponibilité du terrain et adaptation au sol). Pour toute information complémentaire ou pour une prise de rendez vous, franck chauffournier / o6 78 32 7o 57 / technico-commercial gib / hexha / essentiel pavillon témoin de la teste de buch, 38 avenue saint-exupéry. Nombreux autres terrains disponibles sur demande faites confiance à la force d'un groupe comme gib construction et des garanties du contrat de construction de maison individuelle assurant un prix ferme et définitif, du dynamisme, de la notoriété de gib construction présent depuis plus de 15 ans dans ce domaine. Nos maisons sont totalement personnalisables en fonction de vos attentes. Hop, hop, hop, pour bien finir cette année et profiter de la baisse des taux d'intérêts, du retour du ptz, alors n'hésitez plus et contactez moi.
Venez découvrir ce beau projet de construction situé dans un cadre agréable sur la du Barp, à proximité de Salles, Mios et Marcheprime. Sur un terrain de 360 m², profitez d'une maison de plain-pied moderne et fonctionnelle, d'une surface de 60 m² habitables, avec garage attenant (déclinable en 60,70, 80 ou 90 m² selon vos envies et votre budget). Ce projet est idéal pour un premier achat ou un investissement locatif dans un cadre de vie paisible. Le prix global comprend le terrain et la construction de la maison de 60 m² avec garage. Frais de notaire et travaux extérieurs (adductions aux réseaux, raccordement au tout-à-l'égout, aménagements extérieurs, etc.) non inclus. Contactez Julien LAFON au 07 88 28 78 10 pour une étude gratuite de votre projet de construction.
Exceptionnel sur la commune du barp, ce magnifique terrain à bâtir de 307 m² vous permettra de réaliser votre futur projet de construction. Cette parcelle se situe à quelques minutes de tous les commerces, d'un supermarché, des écoles et de la rocade bordelaise. Grâce au retour du prêt à taux zéro, c'est le moment d'investir dans votre future résidence principale, le groupe gib construction vous propose l' essentiel. C'est le nom de cette belle villa de 80 m² habitables composée de 3 belles chambres, d'un grand salon / séjour / cuisine et d'un système de chauffage pompe à chaleur air / air et aux dernières normes re 2020. Le prix pour l'ensemble du projet est de 220900 € hors frais. Profitez également des taux d'intérêts, de notre accompagnement tout au long de votre projet et de toutes les garanties apportées par notre groupe gib construction dans le cadre d'un contrat de construction de maisons individuelles. Tous nos modèles sont personnalisables en fonction de vos souhaits et de vos envies. De nombreux terrains vous attendent. Contactez christophe pour convenir d'un rendez-vous à votre domicile ou à notre pavillon à la teste de buch. Christophe burtin technico-commercial gib / essentiel / hexha tél : o6 2o 77 44 18.
NEWS : Le prêt à taux 0 de l'état revient en Avril : prenez rdv en agence pour en savoir plus ! Maisons d’en France vous propose ce beau projet de construction au Barp sur un grand lot viabilisé de 800 m² au cœur d'un petit lotissement plein de charme. À seulement 30 min de Bordeaux et 30 minutes du bassin d’Arcachon, à 15 minutes des lacs d’Hostens et 20 minutes des vignobles du sud bordelais, ce lotissement à tout pour plaire. Nous proposons sur ce terrain une maison optimisée moderne et fonctionnelle de 90 m², pensée pour allier confort et style : - Une pièce de vie lumineuse de plus de 43 m² avec cuisine ouverte ; - Une grande cuisine d’angle et un cellier ; - Trois chambres avec placards intégrés pour optimiser vos espaces ; - Une climatisation réversible alimentée par une pompe à chaleur performante, idéale pour un confort optimal été comme hiver ; - Une construction respectant les normes environnementales RE2020, pour un habitat durable et économe en énergie ; - Une forme en L qui crée une sensation de cocon. Le modèle "First" est une maison sur catalogue prête à construire. Elle combine prestations de qualité et prix très compétitif. Vous pouvez aussi faire le choix d'opter pour une maison entièrement modifiable selon vos souhaits : le plan, les prestations, le mode de chauffage, les revêtements, etc. Nous avons également d’autres lots que vous pouvez sélectionner pour que le terrain s’adapte parfaitement à votre maison et style de vie. Ce projet inclut : - La maison. - Le terrain. - La viabilisation. - Une Assurance Dommages Ouvrage. À noter : Les travaux de terrassement, les raccordements et les frais de notaire ne sont pas inclus. Pour plus d’informations et échanger autour de votre projet, contactez votre conseiller Samuel COLLARD au O6 70 08 48 05. Terrain proposé en collaboration avec notre partenaire foncier, sous réserve de disponibilité. Nous ne sommes pas mandatés pour la vente de ce terrain. Ref : SCO_BAR_34.