
Chauffage : quels équipements privilégier pour réduire sa facture ?
Alors que l’hiver 2025 s’annonce rigoureux et que les prix de l’énergie restent sous tension, les ménages…
2 résultats
Découvrez Maison Essentiel ! Votre maison de 90 m² en L avec garage, 3 chambres, livrée en 1 an et pour 131 900€ tout compris ! Composée de 3 belles chambres avec placard, une grande salle de bain, le moindre espace a été optimisé dans cette maison. Un hall d'entrée vous accueil, desservant le cellier. Il vous donnera accès à un séjour de presque 45 m², baigné de lumière avec ses grandes ouvertures. Les engagements Maison Essentiel : - Dépôt de PC en 1 mois - Ouverture du chantier en 1 mois - Construction en 10 mois Un contrat carré, et des délais maîtrisés ! Contactez Mathieu OSPITAL au O6 45 4O 85 68 pour lancer votre projet dès aujourd'hui ! Proposition réalisée sur un des terrains de nos partenaires fonciers.
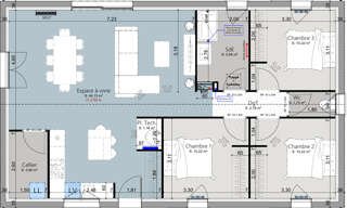
HOURTIN centre - 3 chambres clé en main – Prix 217 554€ ( Terrain viabilisé + Maison sur terre plein). Découvrez cette maison neuve fonctionnelle et esthétique, idéalement située dans un petit lotissement proche du centre, des commerces, des écoles et à seulement 5 minutes du lac d'Hourtin. Une maison pensée pour votre confort Surface utile : 80 m² parfaitement agencés Terrain : 442 m² Séjour lumineux de plus de 37 m² 3 chambres, salle d'eau moderne et toilettes séparées Pompe à chaleur réversible / climatisation pour un confort toute l'année Carrelage, faïence, douche et toilettes inclus Livraison en 10 mois avec toutes les garanties constructeur Options et personnalisation Cette jolie maison se décline aussi en 60,70 ou 90 m², avec ou sans garage Choisissez votre style : -Volets battants traditionnels ou volets roulants électriques pilotés par domotique Somfy. Et pour plus de sérénité, l'étude de sol G2 est comprise dans notre prix ferme et définitif. Geoffrey NOYRE – GIB Construction O6 27 71 12 19 N'hésitez pas à me joindre pour plus d'infos ou organiser une visite !
Autres annonces à proximité de Hourtin (33990) avec vos critères
Joli projet d'une maison de 90 m² habitables, sur une parcelle de 450 m² en plein coeur de la commune de Carcans. Le terrain est situé à 200 m² du bourg et des commodités. Cette jolie maison, de notre gamme essentiel, offre un bel espace de vie et 3 chambres avec une salle de bains, un wc séparé et un cellier. Votre maison pour un prix de 117 000 euros seulement, en prêt à décorer. Les engagements de notre marque Maison Essentiel : - Dépôt de PC en 1 mois - Ouverture du chantier en 1 mois - Construction en 10 mois Un contrat carré, une maison carrée, et des délais maîtrisés ! Contactez Nicolas NOIRET au O6 51 93 38 87, pour lancer votre projet ou pour plus d'information !
Vous rêvez de devenir propriétaire sur la commune de Gaillan-Médoc, Profitez de cette opportunité unique de construire votre futur chez-vous dans un cadre paisible, alliant sérénité et proximité des services. Surface habitable : 80 m² parfaitement agencés sur une parcelle de 1115 m² Espace nuit : 3 chambres lumineuses. Espace de vie : Une pièce de séjour conviviale avec cuisine ouverte. Confort : Prestations modernes et isolation haute performance. Prix Global (Terrain + Maison) : 206 967 € Ce tarif s'entend hors frais de notaire, hors taxes d 'aménagement, hors finitions. Je vous propose un accompagnement personnalisé et tous les renseignements nécessaires pour mener à bien votre projet de construction en toute sérénité. Contactez moi au O6 78 17 86 21 Cindy.

Recevez en temps réel les dernières annonces correspondant à votre recherche
St-Laurent-Médoc – Centre au calme, opportunité clé en main Vous rêvez de devenir propriétaire dans une commune où il fait réellement bon vivre ? Ce projet clé en main est fait pour vous. Situé au centre de Saint-Laurent-Médoc, dans un environnement calme et résidentiel, à seulement 2 minutes en voiture des commerces et des écoles, ce projet bénéficie d'un emplacement privilégié : 45 minutes de Bordeaux 30 minutes du lac d'Hourtin et des plages océanes Nous vous proposons une maison neuve de plain-pied, fonctionnelle et lumineuse, parfaitement pensée pour la vie quotidienne. Carrelage 60X60 dans toutes les pièces de vie. Description du projet : 2 chambres Belle pièce de vie de 33 m² avec séjour / cuisine ouverte Salle d'eau avec douche bac extra-plat 120 x 80 WC indépendants Placard d'entrée Chauffage par pompe à chaleur split réversible (climatisation) Production d'eau chaude sanitaire par ballon thermodynamique Budget maîtrisé – tout est clair : Prix TOUT COMPRIS - Cuisine incluse (enveloppe budget prévu) - Peintures incluses (enveloppe budget prévu) - Hors frais de notaire (env. 7 500 €) - Hors Taxes liées à la construction en sus Un véritable projet serein, sans surprise, idéal pour une résidence principale ou un premier achat, dans une commune dynamique et agréable du Médoc. Délai de construction contractuel de 10 mois Renseignements et accompagnement personnalisé Agence GIB Construction – Saint-Laurent-Médoc - tel O6 76 63 58 86 Contactez-nous pour étudier votre projet et concrétiser votre future maison.
Maison neuve de 80 m² sur Terrain constructible de 515 m², situé dans un lotissement résidentiel calme, déjà entièrement viabilisé (eau, électricité, tout-à-l'égout). Permis de construire immédiat, aucun délai pour démarrer vos travaux ! Délais de construction 10 MOIS Ce terrain s'inscrit dans un projet de maison à prix maîtrisé, idéal pour : un premier achat (primo-accédants) une résidence secondaire accessible toute personne souhaitant devenir propriétaire à budget contenu Construction avec GIB Construction, constructeur local de confiance : accompagnement complet (conception, démarches, réalisation) maison sur mesure adaptée à vos besoins respect du budget fixé dès le départ Contact direct : Geoffrey NOYRE – GIB Construction O6 27 71 12 19 N'hésitez pas à me joindre pour plus d'infos ou organiser une visite !

Alors que l’hiver 2025 s’annonce rigoureux et que les prix de l’énergie restent sous tension, les ménages…

Le foncier n’est plus seulement une question de surface : il devient un actif stratégique piloté par la…

Construire plus vite, mieux et avec moins d’impact : tel est le pari de la construction modulaire. Entre…