Logo LSI sombre

Maison 112 m² à construire Marignier (74970)
Photo N° 2
Photo N° 3
Visite 3D
3

Vente maison à construire 112 m² Marignier (74970)

498 000 €

Votre maison neuve ARTIS à MARIGNIER

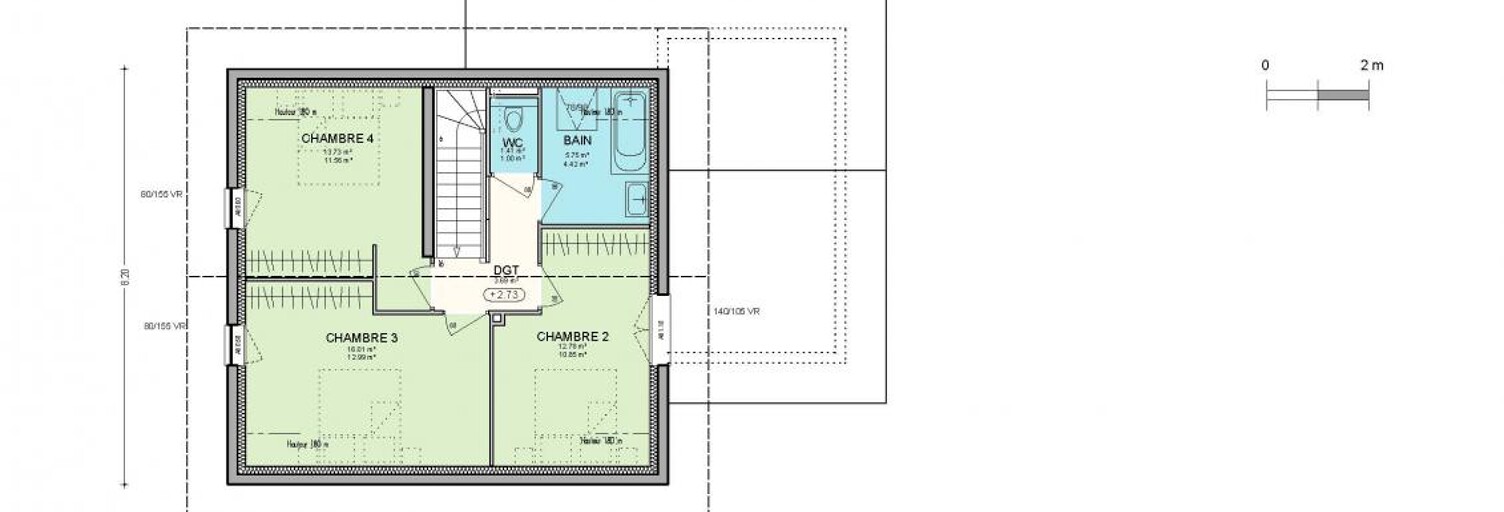
Secteur Marignier, terrain de plus de 600 m², plat et au calme. Découvrez ce projet de construction d'une maison Artis ! Artis est constructeur de maisons individuelles depuis près de 35 ans en Pays de Savoie et Pays de Gex. Choisir Artis pour votre projet, c'est bénéficier de toutes les garanties d'un Contrat de Construction de Maison Individuelle et du suivi rigoureux par nos équipes de votre parcours de construction ! Généreuse en espaces annexes et en rangements, la Spirit multiplie les possibilités ! Coin cuisine, repas et salon s'étendent sur un beau volume, complété d'un bureau ou d'une chambre de plain-pied. À l'étage les rangements optimisent l'espace des 3 chambres. Le garage est accolé. Une seconde salle d'eau est aménageable au rez de chaussée. Contactez-nous ! PRIX : 498 000 € comprenant terrain + frais de notaire + estimatif des VRD + projet maison hors finitions + études de sol REF : BFR - MAR 1.

Caractéristiques

Les plus de cette annonce
  • Garage
  • Jardin
  • Calme
Pièces
  • 5 pièces
  • 4 chambres
  • Salle d'eau
Superficies
  • Surface habitable : 112 m²
Certifications
  • RT2012

Consommation énergétique et gaz à effet de serre

Bilan énergétique (DPE)
NC
Bilan gaz à effet de serre (GES)
NC

Géorisques

Les informations sur les risques auxquels ce bien est exposé sont disponibles sur le site Géorisques : www.georisques.gouv.fr

A propos du prix de cette maison

  • 498 000 € (soit 4 446 € / m²)

À propos de cette annonce

Mise en ligne:

Dernière mise à jour:

Référence de l'annonce: BFR_-_MAR_1
Artis agency.type.constructeur à Épagny Metz-Tessy (74)
Artis
Afficher le numéro

À voir pour le même budget

Maison 4 pièces 461000 €
461 000 €

Maison à construire 4 pièces 93 m²

Marignier (74970)

Secteur marignier, terrain de plus de 600 m², plat et au calme. Découvrez ce projet de construction d'une maison artis ! Artis est constructeur de maisons individuelles depuis près de 35 ans en pays de savoie et pays de gex. Choisir artis pour votre projet, c'est bénéficier de toutes les garanties d'un contrat de construction de maison individuelle et du suivi rigoureux par nos équipes de votre parcours de construction ! Disponible en 2 ou 4 pans, le modèle easy sweet est compacte et très bien conçue : son garage est intégré, et l'espace de vie ouvre sur l'extérieur. À l'étage, profitez de 3 grandes chambres et d'une salle de bains. Contactez-nous ! Prix : 461 000 € comprenant terrain + frais de notaire + estimatif des vrd + projet maison hors finitions + études de sol ref : bfr - mar 2.

Maison 5 pièces 496000 €
496 000 €

Maison à construire 5 pièces 100 m²

Thyez (74300)

Secteur THYEZ, terrain plat au calme de plus de 800 m². Découvrez ce projet de construction d'une maison Artis ! Artis est constructeur de maisons individuelles depuis près de 35 ans en Pays de Savoie et Pays de Gex. Choisir Artis pour votre projet, c'est bénéficier de toutes les garanties d'un Contrat de Construction de Maison Individuelle et du suivi rigoureux par nos équipes de votre parcours de construction ! Généreuse en espaces annexes et en rangements, la Spirit multiplie les possibilités ! Coin cuisine, repas et salon s'étendent sur un beau volume, complété d'un bureau ou d'une chambre de plain-pied. À l'étage les rangements optimisent l'espace des 3 chambres. Le garage est accolé. Une seconde salle d'eau est aménageable au rez de chaussée. Contactez-nous ! Prix : 496000 € comprenant terrain + frais de notaire + estimation des taxes et VRD + étude de sol + projet maison hors finitions. REF : BFR - THYEZ 1.

Maison 5 pièces 521150 €
521 150 €

Maison à construire 5 pièces 111 m²

Saint-Jeoire (74490)

Venez découvrir votre future maison neuve Artis sur la commune de Saint Jeoire dans un petit lotissement proche centre ville avec une magnifique vue dégagée sur les montagnes. Découvrez ce projet de construction d'une maison Artis ! Artis est constructeur de maisons individuelles depuis plus de 35 ans en Pays de Savoie et Pays de Gex, et vous accompagne à chaque étape de votre projet. Choisir Artis pour votre maison, c'est bénéficier de toutes les garanties d'un Contrat de Construction de Maison Individuelle (CCMI) et d'un suivi rigoureux assuré par nos équipes tout au long de votre parcours de construction. Le modèle HERMÈS 111 séduit par son architecture soignée et ses volumes pensés pour le confort de toute la famille. Son agencement propose une belle harmonie entre fonctionnalité et convivialité, avec une pièce de vie agréable et lumineuse, conçue pour s'adapter à votre quotidien. L'espace nuit offre une organisation pratique et bien séparée, idéale pour préserver l'intimité de chacun, avec des chambres confortables et une salle de bains. Selon votre projet et vos besoins, des aménagements et variantes peuvent être envisagés pour personnaliser la maison et optimiser les espaces. Contactez-nous pour en savoir plus et étudier votre projet ! Prix maison : 521 150€ comprenant terrain + frais de notaire + budget VRD + projet maison hors décorations. REF ANNONCE : AME-STJEOIRE-MAR.

Maison 5 pièces 421330 €
421 330 €

Maison à construire 5 pièces 111 m²

Saint-Jeoire (74490)

Venez découvrir votre future maison neuve Artis sur la commune de Saint Jeoire avec une exposition plein sud au calme et proche de toutes commodités Découvrez ce projet de construction d'une maison Artis ! Artis est constructeur de maisons individuelles depuis plus de 35 ans en Pays de Savoie et Pays de Gex, et vous accompagne à chaque étape de votre projet. Choisir Artis pour votre maison, c'est bénéficier de toutes les garanties d'un Contrat de Construction de Maison Individuelle (CCMI) et d'un suivi rigoureux assuré par nos équipes tout au long de votre parcours de construction. Le modèle HERMÈS 111 séduit par son architecture soignée et ses volumes pensés pour le confort de toute la famille. Son agencement propose une belle harmonie entre fonctionnalité et convivialité, avec une pièce de vie agréable et lumineuse, conçue pour s'adapter à votre quotidien. L'espace nuit offre une organisation pratique et bien séparée, idéale pour préserver l'intimité de chacun, avec des chambres confortables et une salle de bains. Selon votre projet et vos besoins, des aménagements et variantes peuvent être envisagés pour personnaliser la maison et optimiser les espaces. Contactez-nous pour en savoir plus et étudier votre projet ! Prix maison : 421330€ comprenant terrain + frais de notaire + budget VRD + projet maison hors décorations. REF ANNONCE : AME-STJEOIRE-GASP.

Maison 4 pièces 592400 €
592 400 €

Maison à construire 4 pièces 92 m²

Châtillon-sur-Cluses (74300)

Saisissez l'opportunité de concrétiser votre projet de chalet dans un environnement privilégié, au cœur du village de Châtillon-sur-Cluses. Apprécié pour son calme, son cadre de vie agréable et son excellent ensoleillement, ce secteur recherché offre une vue dégagée sur les massifs environnants. Idéalement situé à seulement quelques minutes des commodités et des stations de ski, ce terrain d'environ 841 m² bénéficie d'un emplacement harmonieux, conjuguant nature préservée et confort du quotidien. Le modèle Bisanne développe une surface habitable de 92 m² et dispose d'un garage attenant avec accès direct à l'habitation, gage de praticité. Son agencement a été pensé pour privilégier la luminosité et la convivialité : la pièce de vie, largement ouverte sur le jardin, crée une atmosphère chaleureuse, idéale pour les moments de partage en famille ou entre amis. Le rez-de-jardin intègre également une cave, offrant un espace de rangement appréciable ou la possibilité d'aménager un volume complémentaire selon vos besoins. À l'étage, l'espace nuit se compose de trois chambres et d'une salle de bains, formant un ensemble fonctionnel, confortable et harmonieux. À partir de 592 400 €, comprenant : - le terrain de 841 m², - les frais de notaire, - une estimation des taxes, du terrassement et des VRD, - la construction du chalet Artis (hors finitions intérieures). Artis est constructeur de maisons individuelles depuis près de 35 ans en Pays de Savoie et Pays de Gex. Choisir Artis pour votre projet, c'est bénéficier de toutes les garanties d'un Contrat de Construction de Maison Individuelle et du suivi rigoureux par nos équipes de votre parcours de construction ! Contactez-nous ! Ref : AMB.

Maison 4 pièces 407500 €
407 500 €

Maison à construire 4 pièces 93 m²

Scionzier (74950)

À Scionzier – Projet de construction au sein d'un lotissement résidentiel Nous vous proposons ce projet de construction implanté dans un lotissement agréable et résidentiel sur la commune de Scionzier, sur une parcelle d'environ 520 m². Située au cœur de la vallée de l'Arve, la commune de Scionzier séduit par sa situation stratégique et son cadre de vie recherché. Elle offre une proximité immédiate avec les écoles, commerces et services, un accès rapide aux principaux axes routiers, ainsi qu'un environnement naturel privilégié. Les stations de ski et les massifs alpins se trouvent à seulement quelques minutes. Le modèle Sweet est une maison conçue de manière intelligente et fonctionnelle, offrant une surface habitable optimisée et des volumes agréables. Le rez-de-jardin, convivial et lumineux, accueille une belle pièce de vie ouverte regroupant salon, séjour et cuisine, idéale pour partager des moments en famille ou entre amis. Des espaces annexes judicieusement pensés, tels qu'un cellier et un garage attenant, viennent renforcer le confort et la praticité au quotidien. L'étage, entièrement dédié à l'espace nuit, comprend trois chambres ainsi qu'une spacieuse salle de bains familiale, offrant à chacun un cadre de vie agréable et fonctionnel. À partir de 407 500 €, comprenant : - le terrain de 520 m², - les frais de notaire, - une estimation des taxes, du terrassement et des VRD, - la construction du chalet Artis (hors finitions intérieures). Artis est constructeur de maisons individuelles depuis près de 35 ans en Pays de Savoie et Pays de Gex. Choisir Artis pour votre projet, c'est bénéficier de toutes les garanties d'un Contrat de Construction de Maison Individuelle et du suivi rigoureux par nos équipes de votre parcours de construction ! Contactez-nous ! Ref : AMB.