Logo LSI sombre

Maison 70 m² à construire Linxe (40260)
Photo N° 2
Photo N° 3
Photo N° 4
Photo N° 5
Photo N° 6
Photo N° 7
Photo N° 8
8

Vente maison à construire 70 m² Linxe (40260)

168 000 €

Maison neuve 2 chambres à Linxe

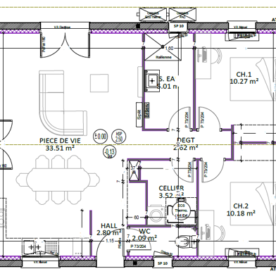
Votre maison sur la jolie commune de Linxe, à moins de 20 minutes de l’océan et tout près de l’A63 qui vous mènera à Bordeaux comme à Bayonne ! Maisons d’en France Sud-Ouest vous propose, à titre d’exemple, de construire cette maison neuve de 70 m², dans ce lotissement à taille humaine, baigné de nature, en lisière de forêt. Confortable, foncionnelle et lumineuse, cette future construction, notre modèle MARGUERITE, est composée d’une belle pièce de vie baignée de lumière grâce à sa triple orientation. La cuisine semi ouverte permet un accès direct au cellier. Un véritable de gage de fonctionnalité ! Côté nuit : deux chambres avec placards intégrés. WC séparé, salle de bains équipée. Ce nid douillet, idéal pour un premier achat, répondra à toutes vos attentes. Le système de chauffage suggéré vous assurera le plus grand confort dans le respect des nouvelles normes environnementales, tout en vous assurant de très substantielles économies, tant en chauffage qu’en rafraîchissement. Ce projet vous est proposé « tout compris » hors peintures et cuisine. Maison + terrain + frais de notaire + terrassement + raccordements à partir de 168 000 euros. Dommages-ouvrage et garanties de parfait achèvement et de livraison à prix et délais convenus incluses. Terrain viabilisé de 600 m², réservé aux primo-accédants dans le cadre d’une résidence principale, selon disponibilité de notre partenaire foncier. Non mandaté pour la vente du terrain. Pour plus de renseignements, n'hésitez pas à joindre Katherine, votre conseillère Maisons d'en France Sud-Ouest, agence de CASTETS. Référence : KF-LINXE-639.

Caractéristiques

Les plus de cette annonce
  • Terrasse
  • Jardin
Pièces
  • 4 pièces
  • 2 chambres
  • Salle de bain
Superficies
  • Surface habitable : 70 m²
Style
  • Lotissement

Consommation énergétique et gaz à effet de serre

Bilan énergétique (DPE)
NC
Bilan gaz à effet de serre (GES)
NC

Géorisques

Les informations sur les risques auxquels ce bien est exposé sont disponibles sur le site Géorisques : www.georisques.gouv.fr

A propos du prix de cette maison

  • 168 000 € (soit 2 400 € / m²)
  • Honoraires à charge vendeur

À propos de cette annonce

Mise en ligne:

Dernière mise à jour:

Référence de l'annonce: KF-LINXE-639
Maisons d’en France Sud Ouest Dax agency.type.constructeur à Saint-Paul-lès-Dax (40990)
Maisons d’en France Sud Ouest Dax
Afficher le numéro

À voir pour le même budget

Maison 4 pièces 180000 €
180 000 €

Maison à construire 4 pièces 85 m²

Linxe (40260)

Réalisez votre rêve de construction sur la jolie commune de Linxe, à 10mn de l’océan, au cœur d’un lotissement à taille humaine. Par exemple sur ce terrain de 974 m², entièrement viabilisé, en lisière de forêt. À 500 m du centre de ce bourg en pleine expansion, de ses commerces et services, écoles et collège. Idéalement situé à 10 mn de Castets et de l’A63, à 10 mn de l’océan. Maisons d’en France Sud-Ouest vous propose d’y construire cette maison neuve fonctionnelle et lumineuse de 85 m². Cette future construction est composée d’une belle pièce de vie de près de 40 m², baignée de lumière grâce à sa triple orientation. La cuisine semi ouverte permet un accès direct au cellier. Un véritable de gage de fonctionnalité ! Côté nuit : trois chambres avec placards intégrés et une salle de bains équipée recevront aisément un couple et deux enfants. WC séparé. Ce futur nid douillet répondra à toutes vos attentes. Le système de chauffage suggéré (PAC Air / Air) vous assurera le plus grand confort dans le respect des nouvelles normes environnementales, tout en vous assurant de très substantielles économies, tant en chauffage qu’en rafraîchissement. Ce projet vous est proposé « tout compris » hors peintures et cuisine. À ce projet vous pourriez ajouter un garage, des m², une terrasse… Terrain viabilisé de 600 m², selon disponibilité de notre partenaire foncier. Non mandaté pour la vente du terrain. Maison (dommage ouvrage et garantie de livraison incluses) + terrain + frais de notaire + terrassement + raccordements à partir de 180 000 euros. Hors taxes d’aménagement. Pour plus de renseignements, n'hésitez pas à joindre Katherine Ferrère, votre conseillère Maisons d'en France Sud-Ouest, agence de CASTETS. Référence : KF-LINXE-613.

Maison 4 pièces 183000 €
183 000 €

Maison à construire 4 pièces 61 m²

Linxe (40260)

Sur la jolie commune de Linxe, à moins de 15 minutes de l’océan et tout près de l’A63 qui vous mènera à Bordeaux comme à Bayonne, Maisons d’en France Sud-Ouest vous propose de construire cette maison neuve ultra lumineuse de 61 m² + garage sur un beau terrain de 600 m² en lisière de forêt. Optimisée et évolutive, elle se compose d’une pièce de vie d’une belle surface pour cette maison 3 pièces : plus de 30 m² avec cuisine ouverte. Cette pièce de vie profite d’une double exposition avec ses 3 ouvertures. Les deux chambres, de plus de 10 m², sont chacune équipée d’un placard intégré sur tout un pan du mur. Cela permet d’optimiser l’espace et de bénéficier de grands rangements. Le système de chauffage suggéré vous assurera le plus grand confort dans le respect de la RE 2020, tout en vous assurant de très substantielles économies, tant en chauffage qu’en rafraîchissement. Maison prête à décorer, (hors peintures, parquets des chambres, cuisine). Pas de plan type chez Maisons d’en France : plan, disposition, système de chauffage, tout reste entièrement personnalisable selon vos envies. Terrain viabilisé de 600 m², selon disponibilité de notre partenaire foncier. Non mandaté pour la vente du terrain. Terrain exclusivement réservé aux primo-accédants et pour une résidence principale. Prix incluant maison + terrain + frais de notaire + terrassement + raccordements à partir de 183 000 euros. Dommages-ouvrage et garanties de parfait achèvement et de livraison à prix et délais convenus incluses. Pour plus de renseignements, n'hésitez pas à joindre Katherine FERRERE, votre conseillère Maisons d'en France Sud-Ouest, agence de Castets. Référence : KF-LINXE-625.

Maison 4 pièces 198000 €
198 000 €

Maison à construire 4 pièces 86 m²

Linxe (40260)

À quelques kilomètres des plages, Maisons d'en France vous propose un projet à Linxe, sur un terrain viabilisé de 600 m², dans un lotissement à la lisière de la forêt proche du cœur de ville et des commodités. Cette annonce comprend un terrain destiné aux primo accédants souhaitant faire construire en résidence principale. À noter, outre les prestations détaillées ci dessous, le projet comprend la dommage ouvrage, le cout des frais de notaire estimés ainsi qu'une une estimation approchante des raccordements indispensables au projet. Côté maison, vous pourrez profiter de 86 m² de surface habitable avec une belle pièce à vivre de presque 40 m². Le coin salon et salle à manger serait bercé de lumière avec ses 2 ouvertures bénéficiant d'une double exposition qui pourraient donner sur une terrasse à aménager ultérieurement. Un cellier dépassant les 7 m² se situerait proche de l'entrée ainsi que de la cuisine afin de vous offrir un espace de rangement intéressant. Côté nuit, 3 chambres ont été prévues avec une salle d'eau commune comprenant une double vasque ainsi qu'une douche à l'italienne. Le système de chauffage vous est proposé avec climatisation réversible, type AIR / AIR. Carrelage dans la zone jour inclus, centralisation électrique pour l'ensemble des volets roulants. La construction de votre maison respectera la RE 2020 ce qui lui permettra de bénéficier entre autre, d'une domotique dernier cri ainsi que d'une faible consommation d'énergie. À noter qu'il vous sera possible d'ajouter par exemple un garage / pièce (s) complémentaire (s) ou d'adapter (réduire ou agrandir) les plans à vos envies (plus ou moins value en fonction). Le prix comprend une estimation réaliste des éléments suivants : - Terrain + maison - garantie d'achèvement et de livraison à prix et délais convenus incluse - DO incluse - Frais de notaire inclus - raccordements inclus - Taxes PFAC et aménagement incluses - visuel non contractuel - Non mandaté pour réaliser la vente du terrain - Selon disponibilité des terrains - Les informations sur les risques auxquels ce bien est exposé sont disponibles dur le site Géorisques / Il restera à votre charge les touches finales, à savoir les parquets dans les chambres, la peinture, la cuisine et les clôtures. Pour toute information complémentaire, n'hésitez pas à contacter Ludwig MOLL, Conseiller habitat Maisons d'en France à Castets. LM07-LINXE.

Maison 3 pièces 174000 €
174 000 €

Maison à construire 3 pièces 70 m²

Linxe (40260)

À quelques kilomètres des plages, Maisons d'en France vous propose un projet à Linxe, sur un terrain viabilisé de 600 m², dans un lotissement à la lisière de la forêt proche du cœur de ville et des commodités. Cette annonce comprend un terrain destiné aux primo accédants souhaitant faire construire en résidence principale. À noter, outre les prestations détaillées ci dessous, le projet comprend la dommage ouvrage, le cout des frais de notaire estimés ainsi qu'une une estimation approchante des raccordements indispensables au projet. Le projet de maison proposé, ajustable à souhait avec une troisième chambre ou un garage par exemple (prix évolutif en fonction), comprendrait une surface de 70 m², avec une belle pièce à vivre lumineuse de plus de 36 m², hall inclus ! 2 chambres seraient prévues côté nuit avec un WC séparé et une salle d'eau. Enfin un cellier permettrait un espace de rangement complémentaire. Le système de chauffage vous est proposé avec climatisation réversible, type AIR / AIR. Le Carrelage dans la zone jour serait inclus. La construction de votre maison respectera la RE 2020 ce qui lui permettra de bénéficier entre autre, d'une domotique dernier cri ainsi que d'une faible consommation d'énergie. Le prix comprend une estimation réaliste des éléments suivants : - Terrain + maison - garantie d'achèvement et de livraison à prix et délais convenus incluse - DO incluse - Frais de notaire inclus - raccordements inclus - Taxes PFAC et aménagement incluses - visuel non contractuel - Non mandaté pour réaliser la vente du terrain - Selon disponibilité des terrains - Les informations sur les risques auxquels ce bien est exposé sont disponibles dur le site Géorisques / Il restera à votre charge les touches finales, à savoir les parquets dans les chambres, la peinture, la cuisine et les clôtures. Pour toute information complémentaire, n'hésitez pas à contacter Ludwig MOLL, Conseiller habitat Maisons d'en France à Castets. LM09-LINXE.

Maison 4 pièces 195000 €
195 000 €

Maison à construire 4 pièces 61 m²

Castets (40260)

Sur la dynamique commune de Castets, à moins de 20 minutes de l’océan et tout près de l’A63 qui vous mènera à Bordeaux comme à Bayonne Maisons d’en France Sud-Ouest vous propose de construire cette maison neuve ultra lumineuse de 61 m² + garage. Optimisée et évolutive, elle se compose d’une pièce de vie d’une belle surface pour cette maison 3 pièces : plus de 30 m² avec cuisine ouverte. Cette pièce de vie profite d’une double exposition avec ses 3 ouvertures. Les deux chambres, de plus de 10 m², sont chacune équipée d’un placard intégré sur tout un pan du mur. Cela permet d’optimiser l’espace et de bénéficier de grands rangements. Chacune d’elles vous séduira également par sa double exposition. Doté d'un réglage pièce par pièce, le système de chauffage suggéré vous assurera le plus grand confort dans le respect de la RE 2020, tout en vous assurant de très substantielles économies, tant en chauffage qu’en rafraichissement. Maison prête à décorer, (hors peintures, parquets des chambres). Pas de plan type chez Maisons d’en France : plan, disposition, système de chauffage, tout reste entièrement personnalisable selon vos envies. Terrain viabilisé de 700 m², selon disponibilité de notre partenaire foncier. Non mandaté pour la vente du terrain. Prix incluant maison + terrain + frais de notaire + terrassement + raccordements à partir de 195 000 euros. Dommages-ouvrage et garanties de parfait achèvement et de livraison à prix et délais convenus incluses. Pour plus de renseignements, n'hésitez pas à joindre Katherine FERRERE, votre conseillère Maisons d'en France Sud-Ouest, agence de Castets. Référence : KF-CASTETS-430.

Maison 3 pièces 186000 €
186 000 €

Maison à construire 3 pièces 70 m²

Castets (40260)

Maisons d'en France vous propose aujourd'hui un projet de construction à Castets, ville située à moins de 20 km des plages, et 30 minutes de Bayonne par l'autoroute ! La ville de Castets est pourvue de commerces et centres médicaux et culturels (grande surface, boulangeries délicieuses, centre médicalisé, cinéma, école. ). À noter, outre les prestations détaillées ci dessous, le projet comprend la dommage ouvrage, le cout des frais de notaire estimés ainsi qu'une une estimation approchante des raccordements indispensables au projet. Concernant l'aménagement de la maison, ajustable à souhait avec une troisième chambre ou un garage par exemple (prix évolutif en fonction), cette dernière comprendrait une surface de 70 m², avec une belle pièce à vivre lumineuse de plus de 36 m², hall inclus ! 2 chambres seraient prévues côté nuit avec un WC séparé et une salle d'eau. Enfin un cellier permettrait un espace de rangement complémentaire. Le système de chauffage vous est proposé avec climatisation réversible, type AIR / AIR. Le Carrelage dans la zone jour serait inclus. La construction de votre maison respectera la RE 2020 ce qui lui permettra de bénéficier entre autre, d'une domotique dernier cri ainsi que d'une faible consommation d'énergie. Le prix comprend une estimation réaliste des éléments suivants : - Terrain + maison - garantie d'achèvement et de livraison à prix et délais convenus incluse - DO incluse - Frais de notaire inclus - raccordements inclus - Taxes PFAC et aménagement incluses - visuel non contractuel - Non mandaté pour réaliser la vente du terrain - Selon disponibilité des terrains - Les informations sur les risques auxquels ce bien est exposé sont disponibles dur le site Géorisques / Il restera à votre charge les touches finales, à savoir les parquets dans les chambres, la peinture, la cuisine et les clôtures. Pour toute information complémentaire, n'hésitez pas à contacter Ludwig MOLL, Conseiller habitat Maisons d'en France à Castets. LM3-CASTETS.