Sur les hauteurs résidentielles de vence, dans un lotissement sécurisé, au calme, bénéficiant d'une vue dégagée des collines à la mer, parcelle de terrain viabilisé plat à bâtir d'une superficie de 1002 m², vendue avec pc accordé pour une villa contemporaine avec piscine d'une surface plancher de 203 m² (zone ufb8 au plum) - bel emplacement.
Mise en ligne:
Dernière mise à jour:
Référence de l'annonce: 513V174TSur les hauteurs résidentielles de vence, dans un lotissement sécurisé, au calme, bénéficiant d'une vue dégagée des collines à la mer, parcelle de terrain viabilisé plat à bâtir d'une superficie de 1001 m², vendue avec pc accordé pour une villa contemporaine avec piscine d'une surface plancher de 170 m² (zone ufb8 au plum) - bel emplacement.
Iad France - Antoine Lapenna vous propose : Opportunité Rare – Terrain Constructible de 1 423 m² avec Piscine à Vence Situé dans un environnement résidentiel recherché de Vence, ce superbe terrain en restanques de 1 423 m² offre une opportunité exceptionnelle de réaliser votre projet immobilier dans un cadre privilégié. Bénéficiant d’une exposition Sud / Ouest, il profite d’un ensoleillement optimal tout au long de la journée et d’un environnement calme et verdoyant, à proximité immédiate du centre-ville. Le terrain constitue une véritable toile vierge pour la construction d’une villa de standing, avec une emprise au sol possible jusqu’à 200 m², permettant la réalisation d’une maison d’environ 400 m² habitables en R + 1 selon le projet. Situation géographique idéale Idéalement localisé, le terrain permet de rejoindre rapidement les principaux points d’intérêt de la région : •5 minutes du centre historique de Vence •5 minutes de Shopping Promenade Riviera •5 minutes de Cagnes-sur-Mer •20 minutes de Aéroport Nice Côte d’Azur Caractéristiques du terrain •Superficie : 1 423 m² •Type : Terrain à bâtir en restanques •Emprise au sol : jusqu’à 200 m² •Exposition : Sud / Ouest •Accès : deux entrées avec possibilités de stationnement Atouts supplémentaires •Piscine maçonnée existante 10 m × 5 m, entièrement fonctionnelle •Abri de piscine à ouverture et fermeture intégrale •Cadre calme et résidentiel •Belle luminosité toute la journée Ce terrain offre un fort potentiel pour la réalisation d’une villa contemporaine ou provençale, dans l’un des secteurs les plus prisés de l’arrière-pays niçois. Contactez-moi dès maintenant pour plus d’informations ou organiser une visite. Conformément à l’article L. 561-5 du Code monétaire et financier, une pièce d’identité sera demandée avant toute visite. Honoraires d'agence à la charge du vendeur. Bien non soumis au DPE. Les informations sur les risques auxquels ce bien est exposé, y compris l'obligation légale de débroussaillement, sont disponibles sur le site Géorisques : La présente annonce immobilière a été rédigée sous la responsabilité éditoriale de M Antoine Lapenna mandataire indépendant en immobilier (sans détention de fonds), agent commercial de la SAS I@D France immatriculé au RSAC de grasse sous le numéro 951416601, titulaire de la carte de démarchage immobilier pour le compte de la société I@D France SAS.
Iad France - Marlène Dos Reis vous propose : À vendre – Terrain constructible dans un environnement privilégié d’environ 750 m², orienté sud-est, entièrement viabilisé (eau, électricité, télécom, tout-à-l’égout), situé au sein d’un lotissement intimiste de seulement trois maisons. Vous bénéficierez d’un environnement exceptionnel, offrant un calme absolu dans un cadre résidentiel recherché. Le permis de construire est en cours de dépôt. Terrain libre de constructeur. Un projet de maison R + 1 d’environ 100 m² est envisageable, avec la possibilité de réaliser une piscine. La propriété dispose de trois stationnements privatifs, ainsi que d’une place visiteur au sein du lotissement. Ce terrain est idéal pour un projet familial alliant confort, tranquillité et qualité de vie. Honoraires d'agence à la charge du vendeur. Bien non soumis au DPE. Les informations sur les risques auxquels ce bien est exposé, y compris l'obligation légale de débroussaillement, sont disponibles sur le site Géorisques : La présente annonce immobilière a été rédigée sous la responsabilité éditoriale de Mme Marlène Dos Reis mandataire indépendant en immobilier (sans détention de fonds), agent commercial de la SAS I@D France immatriculé au RSAC de ANTIBES sous le numéro 842533382, titulaire de la carte de démarchage immobilier pour le compte de la société I@D France SAS.
Iad France - Marlène Dos Reis vous propose : À vendre – Terrain constructible dans un environnement privilégié d’environ 772 m², orienté sud, entièrement viabilisé (eau, électricité, télécom, tout-à-l’égout), situé au sein d’un lotissement intimiste de seulement trois maisons. Vous bénéficierez d’un environnement exceptionnel, offrant un calme absolu dans un cadre résidentiel recherché. Le permis de construire est en cours de dépôt. Terrain libre de constructeur. Un projet de maison R + 1 d’environ 100 m² est envisageable, avec la possibilité de réaliser une piscine. La propriété dispose de trois stationnements privatifs, ainsi que d’une place visiteur au sein du lotissement. Ce terrain est idéal pour un projet familial alliant confort, tranquillité et qualité de vie. Honoraires d'agence à la charge du vendeur. Bien non soumis au DPE. Les informations sur les risques auxquels ce bien est exposé, y compris l'obligation légale de débroussaillement, sont disponibles sur le site Géorisques : La présente annonce immobilière a été rédigée sous la responsabilité éditoriale de Mme Marlène Dos Reis mandataire indépendant en immobilier (sans détention de fonds), agent commercial de la SAS I@D France immatriculé au RSAC de ANTIBES sous le numéro 842533382, titulaire de la carte de démarchage immobilier pour le compte de la société I@D France SAS.

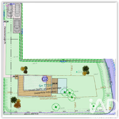
LA GAUDE : Au calme absolu et en même temps proche de toutes les commodités, situé dans un lotissement de seulement 3 lots, beau terrain à bâtir d'une surface de 746 m² vendu entièrement viabilisé (eau, électricité, tout-à-l'égout) avec permis de construire en cours de dépôt portant sur une villa d'une surface de plancher d'environ 95 m² avec possibilité piscine. À visiter sans plus tarder !

LA GAUDE : Au calme absolu et en même temps proche de toutes les commodités, situé dans un lotissement de seulement 3 lots, beau terrain à bâtir d'une surface de 785 m² vendu entièrement viabilisé (eau, électricité, tout-à-l'égout) avec permis de construire en cours de dépôt portant sur une villa d'une surface de plancher d'environ 95 m² avec possibilité piscine. À visiter sans plus tarder !