Logo LSI sombre

Terrain  518 m² à vendre à Thurins (69510)
Photo N° 2
Photo N° 3
3

Vente terrain 518 m² Thurins (69510)

149 000 €
-25 %

Terrain à bâtir de 518m2

Immobilier des Vallons vous propose de découvrir, sur la commune de Thurins, ce terrain à bâtir d'une superficie de 518 m², idéalement situé à proximité des transports et des commerces. Hors lotissement, ce terrain offre un cadre privilégié pour un projet de construction. Les viabilités sont en bordure de parcelle. Emprise au sol maximale autorisée : 40 %, soit 207 m². Pour plus de renseignements ou pour organiser une visite, contactez Immobilier des Vallons au 04 72 54 70 03.

Caractéristiques

Les plus de cette annonce
  • Jardin
Style
  • Lotissement
A proximité
  • Proximité transports

A propos du prix de ce terrain

  • Prix : 149 000 € (soit 288 € / m²) -25 %
  • Honoraires à charge vendeur

Evolution du prix de ce bien

Le prix de ce bien est en baisse de 25 % (-51 000 €) depuis le début de sa diffusion le 01/07/2024.

À propos de cette annonce

Mise en ligne:

Dernière mise à jour:

Référence de l'annonce: 1480
Immobilier des Vallons du Lyonnais
Afficher le numéro

Terrain similaires à acheter Thurins (69510)

Terrain  149000 €
149 000 €

Terrain 518 m²

Thurins (69510)

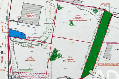
Iad france - véronique carpin vous propose : belle opportunité thurins - terrain 518 m² -libre constructeur- lot 2 sur le plan venez découvrir sur la commune de thurins, proche du centre bourg et des transports en commun (tcl11 et 2ex) une parcelle de terrain non viabilisée d'une superficie de 518 m². Exposé sud, ce terrain est hors lotissement et hors zone d'activité - vendu libre constructeur. La viabilité se situe en bordure de terrain. Honoraires d'agence à la charge du vendeur. Bien non soumis au dpe. Les informations sur les risques auxquels ce bien est exposé, y compris l'obligation légale de débroussaillement, sont disponibles sur le site géorisques : la présente annonce immobilière a été rédigée sous la responsabilité éditoriale de mme véronique carpin mandataire indépendant en immobilier (sans détention de fonds), agent commercial de la sas i@d france immatriculé au rsac de lyon sous le numéro 922345954, titulaire de la carte de démarchage immobilier pour le compte de la société i@d france sas.

À voir pour le même budget

Terrain  175000 €
175 000 €

Terrain 407 m²

Thurins (69510)

Sous compromis - dans un secteur calme et résidentiel de thurins, venez découvrir cette parcelle de terrain viabilisée d'une superficie de 407 m² environ. Proche des commerces, école et transports en commun. Ce terrain, exposé sud / ouest, offre une belle vue dégagée. Libre choix constructeur. Loi alur : statut du négociateur : salarié. Conformément à l'article 561-5 du code monétaire et financier, nous rappelons que la présentation de la pièce d'identité de tous les visiteurs sera demandée avant la visite. Les informations sur les risques auxquels ce bien est exposé sont disponibles sur le site géorisques : .

Terrain  139000 €
139 000 €
-17 %

Terrain 555 m²

Thurins (69510)

Immobilier des Vallons vous propose de découvrir, sur la commune de Thurins, ce terrain à bâtir d'une superficie de 555 m², idéalement situé à proximité des transports et des commerces. Hors lotissement, ce terrain offre un cadre privilégié pour un projet de construction. Les viabilités sont en bordure de parcelle. Emprise au sol maximale autorisée : 40 %. Pour plus de renseignements ou pour organiser une visite, contactez Immobilier des Vallons au 04 72 54 70 03.

Terrain  139000 €
139 000 €

Terrain 555 m²

Thurins (69510)

Iad france - véronique carpin vous propose : belle opportunité thurins- terrain 555 m² -libre constructeur- lot 1 sur plan venez découvrir sur la commune de thurins, proche du centre bourg et des transports en commun (tcl11 et 2ex) une parcelle de terrain non viabilisée d'une superficie de 555 m². Exposé sud, ce terrain est hors lotissement et hors zone d'activité - la viabilité se situe en bordure de terrain. Honoraires d'agence à la charge du vendeur. Bien non soumis au dpe. Les informations sur les risques auxquels ce bien est exposé, y compris l'obligation légale de débroussaillement, sont disponibles sur le site géorisques : la présente annonce immobilière a été rédigée sous la responsabilité éditoriale de mme véronique carpin mandataire indépendant en immobilier (sans détention de fonds), agent commercial de la sas i@d france immatriculé au rsac de lyon sous le numéro 922345954, titulaire de la carte de démarchage immobilier pour le compte de la société i@d france sas.

Terrain  149000 €
149 000 €

Terrain 518 m²

Thurins (69510)

Iad france - véronique carpin vous propose : belle opportunité thurins - terrain 518 m² -libre constructeur- lot 2 sur le plan venez découvrir sur la commune de thurins, proche du centre bourg et des transports en commun (tcl11 et 2ex) une parcelle de terrain non viabilisée d'une superficie de 518 m². Exposé sud, ce terrain est hors lotissement et hors zone d'activité - vendu libre constructeur. La viabilité se situe en bordure de terrain. Honoraires d'agence à la charge du vendeur. Bien non soumis au dpe. Les informations sur les risques auxquels ce bien est exposé, y compris l'obligation légale de débroussaillement, sont disponibles sur le site géorisques : la présente annonce immobilière a été rédigée sous la responsabilité éditoriale de mme véronique carpin mandataire indépendant en immobilier (sans détention de fonds), agent commercial de la sas i@d france immatriculé au rsac de lyon sous le numéro 922345954, titulaire de la carte de démarchage immobilier pour le compte de la société i@d france sas.

Terrain  125000 €
125 000 €

Terrain 2117 m²

Yzeron (69510)

Iad france - ludovic chalindar vous propose : opportunité rare à yzeron ! Découvrez ce terrain de 2117 m², dont environ 900 m² constructibles, idéal pour bâtir la maison de vos rêves dans un cadre naturel préservé et paisible. Bénéficiez d'une exposition plein sud, garantissant un ensoleillement optimal toute l'année. Situé dans un secteur recherché, ce terrain à viabiliser et cadastré ac 312 et ac 315 offre une vue dégagée sur un environnement verdoyant. Classé en zone uc selon le plu, il permet une emprise au sol de 35 %, extensible jusqu'à 42 % sous certaines conditions, offrant ainsi un beau potentiel de construction. Ne laissez pas passer cette occasion unique d'acquérir un terrain d'exception à yzeron ! N'hésitez pas à me contacter pour plus d'informations ou pour organiser une visite ! Honoraires d'agence à la charge du vendeur. Bien non soumis au dpe. Les informations sur les risques auxquels ce bien est exposé, y compris l'obligation légale de débroussaillement, sont disponibles sur le site géorisques : la présente annonce immobilière a été rédigée sous la responsabilité éditoriale de m ludovic chalindar mandataire indépendant en immobilier (sans détention de fonds), agent commercial de la sas i@d france immatriculé au rsac de evry courcouronnes sous le numéro 890248727, titulaire de la carte de démarchage immobilier pour le compte de la société i@d france sas.

Terrain  169000 €
169 000 €

Terrain 501 m²

Vaugneray (69670)

Venez découvrir cette parcelle de terrain non viabilisée, située sur les hauteurs de Vaugneray, d'une superficie de 501 m² environ. Située au calme et hors lotissement. Libre choix constructeur. Loi ALUR : Statut du négociateur : Salarié. Conformément à l'article 561-5 du code monétaire et financier, nous rappelons que la présentation de la pièce d'identité de tous les visiteurs sera demandée avant la visite. Les informations sur les risques auxquels ce bien est exposé sont disponibles sur le site Géorisques : .