Logo LSI sombre

Terrain  1112 m² à vendre à Champcenest (77560)
Photo N° 2
Photo N° 3
3

Vente terrain 1112 m² Champcenest (77560)

66 000 €

Terrain à bâtir de 1112 m² à CHAMPCENEST (77)

Prix : 66000 €. Sur ce terrain de 1112 m² à champcenest, maisons bebium vous propose de réaliser une maison neuve bioclimatique prête à habiter. Maisons bebium vous propose les prestations suivantes : - maison clé en main de 2 à 5 chambres - pièce de vie vaste et lumineuse - baie vitrée de 3 m - cuisine aménagée ouverte sur le salon (coloris au choix) - salle d’eau équipée - sol posé - peinture plafond terminé et 1ère couche sur les murs - wc suspendu et séparé - maison connectée et intelligente - mode de chauffage au choix - accompagnement dans toutes les démarches de votre projet. Toutes nos constructions sont conformes avec la nouvelle re 2020. Contactez mathieu renaux au 06 71 59 36 86 ou au 01 64 52 26 04 (maisons bebium - melun - agence de melun). Prix hors frais de notaire. Terrain sélectionné et vu pour vous sous réserve de disponibilité et au prix indiqué par notre partenaire foncier. Conditions de cette annonce et visuels non contractuels.

Caractéristiques

Les plus de cette annonce
  • Jardin
Pièces
  • Cuisine aménagée

A propos du prix de ce terrain

  • Prix : 66 000 € (soit 59 € / m²)

À propos de cette annonce

Mise en ligne:

Dernière mise à jour:

Référence de l'annonce: TEMR0109490D378E6D
Maisons Bebium - Agence de Melun agence immobilière à Melun (77000)
Maisons Bebium - Agence de Melun
Afficher le numéro

À voir pour le même budget

Terrain  58000 €
58 000 €
-1 %

Terrain 590 m²

Courtacon (77560)

Iad france - philippe jorand vous propose : dans village à 20 minutes du rer tournan, 10 minutes de la ferte gaucher, terrain à batir dans petit lotissement de 4 lots, eau électricité et téléphone en attente, facade de 19 m, 35 m de profondeur, terrain plat. Honoraires d'agence à la charge du vendeur. Bien non soumis au dpe. Les informations sur les risques auxquels ce bien est exposé, y compris l'obligation légale de débroussaillement, sont disponibles sur le site géorisques : la présente annonce immobilière a été rédigée sous la responsabilité éditoriale de m philippe jorand mandataire indépendant en immobilier (sans détention de fonds), agent commercial de la sas i@d france immatriculé au rsac de melun sous le numéro 424191047, titulaire de la carte de démarchage immobilier pour le compte de la société i@d france sas.

Terrain  56000 €
56 000 €

Terrain 592 m²

Courtacon (77560)

À courtacon, axe nationale 4,45 minutes de pontault combault, terrain constructible viabilisé d'une surface de 592 m². La commune de courtacon est située entre la ferté gaucher et provins, école primaire à beton bazoches, collège villiers saint georges et lycée à provins, ramassages scolaires, périscolaire pour le primaire. À visiter rapidement, contactez-nous pour organiser une visite mme regnier laurence 06 82 30 14 57 - l.regnier@power-immo.com powerimmo seine et marne - rsac 881183115.

Terrain  53000 €
53 000 €

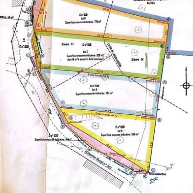
Terrain 776 m²

Courtacon (77560)

À courtacon, axe nationale 4,15 minutes de la gare de provins, 10 minutes de la ferté gaucher. Terrain à bâtir d'une surface de 776 m², non viabilisé, raccordement sur rue à proximité, façade 17 mètres, lot d d'un plan de division. Commune en regroupement scolaire pour le primaire, collège et lycée. À visiter rapidement, contactez-nous pour organiser une visite mme regnier laurence 06 82 30 14 57 - l.regnier@power-immo.com powerimmo seine et marne - rsac 881183115.

Terrain  63000 €
63 000 €

Terrain 928 m²

Courtacon (77560)

À courtacon, axe nationale 4,15 minutes de la gare de provins, 10 minutes de la ferté gaucher. Terrain à bâtir d'une surface de 928 m², non viabilisé, raccordement sur rue à proximité, façade 14 mètres, lot c d'un plan de division. Commune en regroupement scolaire pour le primaire, collège et lycée. À visiter rapidement, contactez-nous pour organiser une visite mme regnier laurence 06 82 30 14 57 - l.regnier@power-immo.com powerimmo seine et marne - rsac 881183115.

Terrain  54000 €
54 000 €

Terrain 784 m²

Courtacon (77560)

À courtacon, axe nationale 4,15 minutes de la gare de provins, 10 minutes de la ferté gaucher. Terrain à bâtir d'une surface de 784 m², non viabilisé, raccordement sur rue à proximité, façade 19 mètres, lot b d'un plan de division. Commune en regroupement scolaire pour le primaire, collège et lycée. À visiter rapidement, contactez-nous pour organiser une visite mme regnier laurence 06 82 30 14 57 - l.regnier@power-immo.com powerimmo seine et marne - rsac 881183115.

Terrain  58000 €
58 000 €

Terrain 414 m²

Beton-Bazoches (77320)

Prix : 58000 €. Sur ce terrain de 414 m² à beton-bazoches, maisons bebium vous propose de réaliser une maison neuve bioclimatique prête à habiter. Maisons bebium vous propose les prestations suivantes : - maison clé en main de 2 à 5 chambres - pièce de vie vaste et lumineuse - baie vitrée de 3 m - cuisine aménagée ouverte sur le salon (coloris au choix) - salle d’eau équipée - sol posé - peinture plafond terminé et 1ère couche sur les murs - wc suspendu et séparé - maison connectée et intelligente - mode de chauffage au choix - accompagnement dans toutes les démarches de votre projet. Toutes nos constructions sont conformes avec la nouvelle re 2020. Contactez mathieu renaux au 06 71 59 36 86 ou au 01 64 52 26 04 (maisons bebium - melun - agence de melun). Prix hors frais de notaire. Terrain sélectionné et vu pour vous sous réserve de disponibilité et au prix indiqué par notre partenaire foncier. Conditions de cette annonce et visuels non contractuels.