2 résultats
Maison neuve à construire lilas_2ch_71_v1 belle maison de 2 chambres cette maison de 2 chambres offre une superficie initiale de 71 m² habitable avant agrandissement. Elle propose une pièce de vie de 40 m² évolutive selon vos besoins et vos souhaits. Et si vous faisiez construire avec maisons alysia ? Testez notre configurateur en ligne et personnalisez votre projet en - de 2 mn : • projet chiffré personnalisé téléchargeable. • gratuit, rapide et sans engagement. • + de 130 modèles de maisons personnalisables. Rendez-vous sur notre site maisons-alysia(.Com) pour concrétiser votre rêve. Contactez nous au 02.55. 59.660. 86 pour finaliser votre projet ! Agence alysia : 1 rue henry spriet -14120 mondeville melissa leveque - chargée de projet contact : au 02 21 67 53 31.
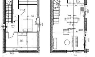
Iad France - Déborah Duquenne vous propose : Opportunité Exceptionnelle - Maison Neuve 4 pièces à Bretteville-sur-Laize Située dans la charmante commune de Bretteville-sur-Laize, cette maison neuve de 90 m² sera un véritable bijou pour ses futurs propriétaires. Elle pourra être aménagée à votre goût car les finitions seront à prévoir : sols des chambres et SDB a finir. Construite avec des matériaux de qualité et une conception moderne, cette propriété offre un cadre de vie idéal pour une famille à la recherche de confort et de tranquillité. * Description des Pièces : * - 3 Chambres pour accueillir toute la famille (13,83 m² / 9,42 m² / 11 m²) - 1 Salle de bain - 1 Cuisine équipée pour préparer de délicieux repas - 1 Salon lumineux (traversant) pour des moments conviviaux en famille - 1 Salle à manger chaleureuse pour des instants de partage - 1 WC séparé - Surface totale de 90 m² répartie intelligemment pour un confort optimal * Avantages de la Maison : * - Maison neuve - Quartier résidentiel paisible, idéal pour la tranquillité familiale - Proximité des commodités, commerces, écoles et espaces verts pour une vie pratique au quotidien - Chauffage efficace grâce à un système de chauffage par pompe à chaleur et des radiateurs. Cette maison offre une singularité rare sur le marché immobilier de Bretteville-sur-Laize. Sa conception moderne et son état neuf vous assurent un cadre de vie exceptionnel dès votre emménagement. Ne manquez pas cette occasion unique ! Contactez-nous dès maintenant pour organiser une visite et découvrir votre futur cocon familial. Honoraires d'agence à la charge du vendeur. Information d'affichage énergétique sur ce bien : classe ENERGIE A indice 49 et classe CLIMAT A indice 1. Les informations sur les risques auxquels ce bien est exposé, y compris l'obligation légale de débroussaillement, sont disponibles sur le site Géorisques : La présente annonce immobilière a été rédigée sous la responsabilité éditoriale de Mme Déborah Duquenne mandataire indépendant en immobilier (sans détention de fonds), agent commercial de la SAS I@D France immatriculé au RSAC de CAEN sous le numéro 830054359, titulaire de la carte de démarchage immobilier pour le compte de la société I@D France SAS.
Autres annonces à proximité de Bretteville-sur-Laize (14680) avec vos critères
Maison neuve à construire magnolia_2ch_68_v1 belle maison de 2 chambres cette maison de 2 chambres offre une distribution optimisée des pièces sur une superficie de 68 m² habitable. Ce plan compact a été pensé pour faciliter l'accès à la propriété avec un budget maîtrisé. Et si vous faisiez construire avec maisons alysia ? Testez notre configurateur en ligne et personnalisez votre projet en - de 2 mn : • projet chiffré personnalisé téléchargeable. • gratuit, rapide et sans engagement. • + de 130 modèles de maisons personnalisables. Rendez-vous sur notre site maisons-alysia(.Com) pour concrétiser votre rêve. Contactez-nous au 02 55 59 60 86 pour finaliser votre projet ! Agence alysia : 1 rue henry spriet -14120 mondeville melissa leveque- chargée de projet contact : au 02 21 67 53 31.
À may-sur-orne, commune dynamique avec de nombreux commerces et écoles, venez découvrir cette maison idéale pour un jeune couple ayant le projet d'une première acquisition. Depuis l'entrée, vous accédez à un grand séjour de 40 m², une cuisine lumineuse de 15 m² donnant accès au jardin sans vis à vis et sa terrasse bien exposée. 1 wc indépendant. À l'étage, le pallier dessert deux grandes chambres de 12 et 16 m² dont une avec balcon terrasse pour ainsi profiter avec plaisir des couchers de soleil. Une salle d'eau avec wc complète ce niveau. Huisseries pvc avec volets roulants motorisés au rez-de-chaussée. Chauffage gaz de ville. Dpe d. Les informations sur les risques auxquels ce bien est exposé sont disponibles sur le site géorisques : prix de vente : 210 000 € honoraires charge vendeur contactez votre conseiller safti : elodie marie, tél. : 06 71 56 57 19, e-mail : elodie.marie@safti.fr - ei - agent commercial immatriculé au rsac de caen sous le numéro 918 856 105.

Recevez en temps réel les dernières annonces correspondant à votre recherche
Iad France - Benoit Loisel vous propose : À Laize-Clinchamps, dans une belle longère en pierre du 19ème siècle à rénover, offrant environ 65 m² habitables, un grenier ainsi qu’une dépendance de 37 m², le tout sur un terrain d’environ 600 m². Ce bien présente un fort potentiel pour créer une maison authentique dans un cadre calme et verdoyant. La maison nécessite des travaux de rénovation et de viabilisation, permettant de personnaliser l’espace selon vos envies. Idéal pour projet familial ou investisseur recherchant charme et espace extérieur. Contactez-moi pour organiser une visite et découvrir ce bien à fort potentiel. Honoraires d'agence à la charge du vendeur. Bien non soumis au DPE. Les informations sur les risques auxquels ce bien est exposé, y compris l'obligation légale de débroussaillement, sont disponibles sur le site Géorisques : La présente annonce immobilière a été rédigée sous la responsabilité éditoriale de M Benoit Loisel mandataire indépendant en immobilier (sans détention de fonds), agent commercial de la SAS I@D France immatriculé au RSAC de CAEN sous le numéro 951884220, titulaire de la carte de démarchage immobilier pour le compte de la société I@D France SAS.
En exclusivite - à saint-martin-de-fontenay (14320) grégory geffroy, votre conseiller en immobilier safti, vous propose cette maison de plain-pied entièrement rénovée édifiée sur une parcelle clôturée d'environ 208 m². La maison se compose d'une pièce de vie avec cuisine ouverte, un dégagement desservant trois chambres, une salle d'eau ainsi qu'un toilette indépendant. L'enrobé devant la maison serait fait avant la vente (tout venant actuellement) la maison a été entièrement remise à neuf, vous pouvez poser vos valises ! Information complementaires : - assainissement en tout à l'égout - huisseries pvc double vitrage - volets roulants électriques - radiateurs électriques - vmc simple flux - electricité refaite à neuf - toiture en bac acier - absence de garage - mitoyenne d'un côté (studio) - commune fibrée les informations sur les risques auxquels ce bien est exposé sont disponibles sur le site géorisques : prix de vente : 249 000 € honoraires charge vendeur contactez votre conseiller safti : gregory geffroy, tél. : 06 61 47 15 55, e-mail : gregory.geffroy@safti.fr - ei - agent commercial immatriculé au rsac de caen sous le numéro 838 092 526.
Maison non mitoyenne de plain-pied sur sous-sol complet. 90 m² habitables. 10 min de Caen. Située à deux pas des commerces et services (tout accessible à pied), cette maison lumineuse, soigneusement entretenue, offre un cadre de vie confortable et fonctionnel. Édifiée de plain-pied surélevé, elle se compose comme suit : Entrée Séjour parqueté Cuisine aménagée et équipée Deux chambres Une pièce supplémentaire pouvant faire office de bureau, chambre d'enfant ou dressing Salle d'eau avec WC + WC séparé Une véranda chauffée de 16 m² vient compléter l'espace de vie. Confort et équipements : volets roulants électriques avec télécommande, fenêtres double vitrage oscillo-battantes, toiture 4 pans en ardoises naturelles, pompe à chaleur, poêle à bois, isolation intérieure et extérieure, ballon d'eau chaude thermodynamique. Le sous-sol complet comprend un garage, une buanderie, une cave à vin ainsi qu'une pièce de 14 m² (ancienne chambre). À l'extérieur, beau jardin arboré de 752 m². Les informations sur les risques auxquels ce bien est exposé sont disponibles sur le site Géorisques : Prix de vente : 306 800 € Honoraires charge vendeur Contactez votre conseiller SAFTI : Anaëlle DENOLLE, Tél. : 06 65 01 46 84, E-mail : anaelle.denolle@safti.fr - EI - Agent commercial immatriculé au RSAC de CAEN sous le numéro 945365229.
Maison neuve à construire jonquille_2ch_65_v2 belle maison de 2 chambres cette maison de 2 chambres offre une distribution optimisée des pièces sur une superficie de 65 m² habitable. Ce plan compact a été pensé pour faciliter l'accès à la propriété avec un budget maîtrisé. Et si vous faisiez construire avec maisons alysia ? Testez notre configurateur en ligne et personnalisez votre projet en - de 2 mn : • projet chiffré personnalisé téléchargeable. • gratuit, rapide et sans engagement. • + de 130 modèles de maisons personnalisables. Rendez-vous sur notre site maisons-alysia(.Com) pour concrétiser votre rêve. Contactez-nous au 02 55 59 60 86 pour finaliser votre projet ! Agence alysia : 1 rue henry spriet -14120 mondeville melissa leveque- chargée de projet contact : au 02 21 67 53 31.
À Bourguébus, commune dynamique avec école, commerces et bus de ville, venez découvrir cette agréable maison de 2019 érigée sur une parcelle entièrement close de 359 m² et qui se compose comme suit : L'entrée équipée d'un grand placard vous conduit directement vers la pièce de vie très lumineuse de plus de 50 m² avec cuisine ouverte et bénéficiant d'une triple exposition pour garantir un ensoleillement optimal tout au long de la journée. Vous disposez d'un accès direct aux deux terrasses dont une de 25 m² exposée plein sud. Un WC indépendant avec lave mains et un garage carrelé attenant complètent ce niveau. À l'étage un couloir dessert 3 jolies chambres mansardées de 9 et 13 m² environ, toutes équipées de placards coulissants, une salle de bain avec douche et baignoire ainsi qu'un WC indépendant. Chauffage par pompe à chaleur, huisseries PVC avec double vitrage et volets roulants manuels. Stores occultants dans chaque chambre. Très bon DPE. Maison idéale pour une première acquisition, à visiter sans tarder ! Les informations sur les risques auxquels ce bien est exposé sont disponibles sur le site Géorisques : Prix de vente : 280 000 € Honoraires charge vendeur Contactez votre conseiller SAFTI : Elodie MARIE, Tél. : 06 71 56 57 19, E-mail : elodie.marie@safti.fr - EI - Agent commercial immatriculé au RSAC de CAEN sous le numéro 918 856 105.
À saint-martin-de-fontenay sur un terrain de 316 m², maisons bebium vous propose de réaliser cette maison neuve bioclimatique prête à habiter d'une surface de 89.33 m² habitables avec 3 chambres. Maisons bebium vous propose les prestations suivantes : - maison clé en main de 2 à 4 chambres - pièce de vie vaste et lumineuse - baie vitrée de 3 m - cuisine aménagée ouverte sur le salon (coloris au choix) - salle d’eau équipée d'une douche à l'italienne - sol posé - peinture plafond terminé et 1ère couche sur les murs - wc suspendu et séparé - maison connectée et intelligente - volets roulants compris - mode de chauffage au choix - accompagnement dans toutes les démarches de votre projet. Toutes nos constructions sont conformes avec la nouvelle re 2020. Contactez caroline bigare au ou au 02 31 70 32 96 (maisons bebium - calvados - agence de mondeville). Prix avec assurance dommages-ouvrage comprise, hors vrd, terrain viabilisé, frais de notaire compris, frais divers non compris. Terrain sélectionné et vu pour vous sous réserve de disponibilité et au prix indiqué par notre partenaire foncier. Conditions de cette annonce et visuels non contractuels. Cette annonce a été créée et diffusée avec le logiciel vitahome.
À saint-martin-de-fontenay sur un terrain de 316 m², maisons bebium vous propose de réaliser cette maison neuve bioclimatique prête à habiter d'une surface de 80.07 m² habitables avec 3 chambres. Maisons bebium vous propose les prestations suivantes : - maison clé en main de 2 à 4 chambres - pièce de vie vaste et lumineuse - baie vitrée de 3 m - cuisine aménagée ouverte sur le salon (coloris au choix) - salle d’eau équipée d'une douche à l'italienne - sol posé - peinture plafond terminé et 1ère couche sur les murs - wc suspendu et séparé - maison connectée et intelligente - volets roulants compris - mode de chauffage au choix - accompagnement dans toutes les démarches de votre projet. Toutes nos constructions sont conformes avec la nouvelle re 2020. Contactez caroline bigare au ou au 02 31 70 32 96 (maisons bebium - calvados - agence de mondeville). Prix avec assurance dommages-ouvrage comprise, hors vrd, terrain viabilisé, frais de notaire compris, frais divers non compris. Terrain sélectionné et vu pour vous sous réserve de disponibilité et au prix indiqué par notre partenaire foncier. Conditions de cette annonce et visuels non contractuels. Cette annonce a été créée et diffusée avec le logiciel vitahome.
À saint-martin-de-fontenay sur un terrain de 316 m², maisons bebium vous propose de réaliser cette maison neuve bioclimatique prête à habiter d'une surface de 92.62 m² habitables avec 3 chambres. Maisons bebium vous propose les prestations suivantes : - maison clé en main de 2 à 4 chambres - pièce de vie vaste et lumineuse - baie vitrée de 3 m - cuisine aménagée ouverte sur le salon (coloris au choix) - salle d’eau équipée d'une douche à l'italienne - sol posé - peinture plafond terminé et 1ère couche sur les murs - wc suspendu et séparé - maison connectée et intelligente - volets roulants compris - mode de chauffage au choix - accompagnement dans toutes les démarches de votre projet. Toutes nos constructions sont conformes avec la nouvelle re 2020. Contactez caroline bigare au ou au 02 31 70 32 96 (maisons bebium - calvados - agence de mondeville). Prix avec assurance dommages-ouvrage comprise, hors vrd, terrain viabilisé, frais de notaire compris, frais divers non compris. Terrain sélectionné et vu pour vous sous réserve de disponibilité et au prix indiqué par notre partenaire foncier. Conditions de cette annonce et visuels non contractuels. Cette annonce a été créée et diffusée avec le logiciel vitahome.
À saint-martin-de-fontenay sur un terrain de 316 m², maisons bebium vous propose de réaliser cette maison neuve bioclimatique prête à habiter d'une surface de 80.07 m² habitables avec 3 chambres. Maisons bebium vous propose les prestations suivantes : - maison clé en main de 2 à 4 chambres - pièce de vie vaste et lumineuse - baie vitrée de 3 m - cuisine aménagée ouverte sur le salon (coloris au choix) - salle d’eau équipée d'une douche à l'italienne - sol posé - peinture plafond terminé et 1ère couche sur les murs - wc suspendu et séparé - maison connectée et intelligente - volets roulants compris - mode de chauffage au choix - accompagnement dans toutes les démarches de votre projet. Toutes nos constructions sont conformes avec la nouvelle re 2020. Contactez caroline bigare au ou au 02 31 70 32 96 (maisons bebium - calvados - agence de mondeville). Prix avec assurance dommages-ouvrage comprise, hors vrd, terrain viabilisé, frais de notaire compris, frais divers non compris. Terrain sélectionné et vu pour vous sous réserve de disponibilité et au prix indiqué par notre partenaire foncier. Conditions de cette annonce et visuels non contractuels. Cette annonce a été créée et diffusée avec le logiciel vitahome.
À saint-martin-de-fontenay sur un terrain de 316 m², maisons bebium vous propose de réaliser cette maison neuve bioclimatique prête à habiter d'une surface de 89.33 m² habitables avec 3 chambres. Maisons bebium vous propose les prestations suivantes : - maison clé en main de 2 à 4 chambres - pièce de vie vaste et lumineuse - baie vitrée de 3 m - cuisine aménagée ouverte sur le salon (coloris au choix) - salle d’eau équipée d'une douche à l'italienne - sol posé - peinture plafond terminé et 1ère couche sur les murs - wc suspendu et séparé - maison connectée et intelligente - volets roulants compris - mode de chauffage au choix - accompagnement dans toutes les démarches de votre projet. Toutes nos constructions sont conformes avec la nouvelle re 2020. Contactez caroline bigare au ou au 02 31 70 32 96 (maisons bebium - calvados - agence de mondeville). Prix avec assurance dommages-ouvrage comprise, hors vrd, terrain viabilisé, frais de notaire compris, frais divers non compris. Terrain sélectionné et vu pour vous sous réserve de disponibilité et au prix indiqué par notre partenaire foncier. Conditions de cette annonce et visuels non contractuels. Cette annonce a été créée et diffusée avec le logiciel vitahome.
À saint-martin-de-fontenay sur un terrain de 316 m², maisons bebium vous propose de réaliser cette maison neuve bioclimatique prête à habiter d'une surface de 92.62 m² habitables avec 3 chambres. Maisons bebium vous propose les prestations suivantes : - maison clé en main de 2 à 4 chambres - pièce de vie vaste et lumineuse - baie vitrée de 3 m - cuisine aménagée ouverte sur le salon (coloris au choix) - salle d’eau équipée d'une douche à l'italienne - sol posé - peinture plafond terminé et 1ère couche sur les murs - wc suspendu et séparé - maison connectée et intelligente - volets roulants compris - mode de chauffage au choix - accompagnement dans toutes les démarches de votre projet. Toutes nos constructions sont conformes avec la nouvelle re 2020. Contactez caroline bigare au ou au 02 31 70 32 96 (maisons bebium - calvados - agence de mondeville). Prix avec assurance dommages-ouvrage comprise, hors vrd, terrain viabilisé, frais de notaire compris, frais divers non compris. Terrain sélectionné et vu pour vous sous réserve de disponibilité et au prix indiqué par notre partenaire foncier. Conditions de cette annonce et visuels non contractuels. Cette annonce a été créée et diffusée avec le logiciel vitahome.
À saint-andre-sur-orne sur un terrain de 370 m², maisons bebium vous propose de réaliser cette maison neuve bioclimatique prête à habiter d'une surface de 80.07 m² habitables avec 3 chambres. Maisons bebium vous propose les prestations suivantes : - maison clé en main de 2 à 4 chambres - pièce de vie vaste et lumineuse - baie vitrée de 3 m - cuisine aménagée ouverte sur le salon (coloris au choix) - salle d’eau équipée d'une douche à l'italienne - sol posé - peinture plafond terminé et 1ère couche sur les murs - wc suspendu et séparé - maison connectée et intelligente - volets roulants compris - mode de chauffage au choix - accompagnement dans toutes les démarches de votre projet. Toutes nos constructions sont conformes avec la nouvelle re 2020. Contactez caroline bigare au ou au 02 31 70 32 96 (maisons bebium - calvados - agence de mondeville). Prix avec assurance dommages-ouvrage comprise, hors vrd, terrain viabilisé, frais de notaire compris, frais divers non compris. Terrain sélectionné et vu pour vous sous réserve de disponibilité et au prix indiqué par notre partenaire foncier. Conditions de cette annonce et visuels non contractuels. Cette annonce a été créée et diffusée avec le logiciel vitahome.
À saint-andre-sur-orne sur un terrain de 370 m², maisons bebium vous propose de réaliser cette maison neuve bioclimatique prête à habiter d'une surface de 92.62 m² habitables avec 3 chambres. Maisons bebium vous propose les prestations suivantes : - maison clé en main de 2 à 4 chambres - pièce de vie vaste et lumineuse - baie vitrée de 3 m - cuisine aménagée ouverte sur le salon (coloris au choix) - salle d’eau équipée d'une douche à l'italienne - sol posé - peinture plafond terminé et 1ère couche sur les murs - wc suspendu et séparé - maison connectée et intelligente - volets roulants compris - mode de chauffage au choix - accompagnement dans toutes les démarches de votre projet. Toutes nos constructions sont conformes avec la nouvelle re 2020. Contactez caroline bigare au ou au 02 31 70 32 96 (maisons bebium - calvados - agence de mondeville). Prix avec assurance dommages-ouvrage comprise, hors vrd, terrain viabilisé, frais de notaire compris, frais divers non compris. Terrain sélectionné et vu pour vous sous réserve de disponibilité et au prix indiqué par notre partenaire foncier. Conditions de cette annonce et visuels non contractuels. Cette annonce a été créée et diffusée avec le logiciel vitahome.
À saint-andre-sur-orne sur un terrain de 370 m², maisons bebium vous propose de réaliser cette maison neuve bioclimatique prête à habiter d'une surface de 89.33 m² habitables avec 3 chambres. Maisons bebium vous propose les prestations suivantes : - maison clé en main de 2 à 4 chambres - pièce de vie vaste et lumineuse - baie vitrée de 3 m - cuisine aménagée ouverte sur le salon (coloris au choix) - salle d’eau équipée d'une douche à l'italienne - sol posé - peinture plafond terminé et 1ère couche sur les murs - wc suspendu et séparé - maison connectée et intelligente - volets roulants compris - mode de chauffage au choix - accompagnement dans toutes les démarches de votre projet. Toutes nos constructions sont conformes avec la nouvelle re 2020. Contactez caroline bigare au ou au 02 31 70 32 96 (maisons bebium - calvados - agence de mondeville). Prix avec assurance dommages-ouvrage comprise, hors vrd, terrain viabilisé, frais de notaire compris, frais divers non compris. Terrain sélectionné et vu pour vous sous réserve de disponibilité et au prix indiqué par notre partenaire foncier. Conditions de cette annonce et visuels non contractuels. Cette annonce a été créée et diffusée avec le logiciel vitahome.
À saint-andre-sur-orne sur un terrain de 370 m², maisons bebium vous propose de réaliser cette maison neuve bioclimatique prête à habiter d'une surface de 92.62 m² habitables avec 3 chambres. Maisons bebium vous propose les prestations suivantes : - maison clé en main de 2 à 4 chambres - pièce de vie vaste et lumineuse - baie vitrée de 3 m - cuisine aménagée ouverte sur le salon (coloris au choix) - salle d’eau équipée d'une douche à l'italienne - sol posé - peinture plafond terminé et 1ère couche sur les murs - wc suspendu et séparé - maison connectée et intelligente - volets roulants compris - mode de chauffage au choix - accompagnement dans toutes les démarches de votre projet. Toutes nos constructions sont conformes avec la nouvelle re 2020. Contactez caroline bigare au ou au 02 31 70 32 96 (maisons bebium - calvados - agence de mondeville). Prix avec assurance dommages-ouvrage comprise, hors vrd, terrain viabilisé, frais de notaire compris, frais divers non compris. Terrain sélectionné et vu pour vous sous réserve de disponibilité et au prix indiqué par notre partenaire foncier. Conditions de cette annonce et visuels non contractuels. Cette annonce a été créée et diffusée avec le logiciel vitahome.
À saint-andre-sur-orne sur un terrain de 370 m², maisons bebium vous propose de réaliser cette maison neuve bioclimatique prête à habiter d'une surface de 80.07 m² habitables avec 3 chambres. Maisons bebium vous propose les prestations suivantes : - maison clé en main de 2 à 4 chambres - pièce de vie vaste et lumineuse - baie vitrée de 3 m - cuisine aménagée ouverte sur le salon (coloris au choix) - salle d’eau équipée d'une douche à l'italienne - sol posé - peinture plafond terminé et 1ère couche sur les murs - wc suspendu et séparé - maison connectée et intelligente - volets roulants compris - mode de chauffage au choix - accompagnement dans toutes les démarches de votre projet. Toutes nos constructions sont conformes avec la nouvelle re 2020. Contactez caroline bigare au ou au 02 31 70 32 96 (maisons bebium - calvados - agence de mondeville). Prix avec assurance dommages-ouvrage comprise, hors vrd, terrain viabilisé, frais de notaire compris, frais divers non compris. Terrain sélectionné et vu pour vous sous réserve de disponibilité et au prix indiqué par notre partenaire foncier. Conditions de cette annonce et visuels non contractuels. Cette annonce a été créée et diffusée avec le logiciel vitahome.
À saint-andre-sur-orne sur un terrain de 370 m², maisons bebium vous propose de réaliser cette maison neuve bioclimatique prête à habiter d'une surface de 89.33 m² habitables avec 3 chambres. Maisons bebium vous propose les prestations suivantes : - maison clé en main de 2 à 4 chambres - pièce de vie vaste et lumineuse - baie vitrée de 3 m - cuisine aménagée ouverte sur le salon (coloris au choix) - salle d’eau équipée d'une douche à l'italienne - sol posé - peinture plafond terminé et 1ère couche sur les murs - wc suspendu et séparé - maison connectée et intelligente - volets roulants compris - mode de chauffage au choix - accompagnement dans toutes les démarches de votre projet. Toutes nos constructions sont conformes avec la nouvelle re 2020. Contactez caroline bigare au ou au 02 31 70 32 96 (maisons bebium - calvados - agence de mondeville). Prix avec assurance dommages-ouvrage comprise, hors vrd, terrain viabilisé, frais de notaire compris, frais divers non compris. Terrain sélectionné et vu pour vous sous réserve de disponibilité et au prix indiqué par notre partenaire foncier. Conditions de cette annonce et visuels non contractuels. Cette annonce a été créée et diffusée avec le logiciel vitahome.
Florent Quevenne vous propose à la vente cette maison jumelée par le garage, construite en 2017, idéalement située au calme d'une impasse, dans un petit lotissement, à moins de 5 minutes du périphérique de Caen et du centre commercial Leclerc d'Ifs. Au rez-de-chaussée, vous découvrirez une agréable pièce de vie d'environ 30 m², baignée de lumière grâce à sa triple exposition Est, Sud et Ouest. Elle se compose d'un salon-séjour chaleureux, d'une cuisine aménagée et équipée, ainsi que d'un poêle à bois, le tout ouvert sur un jardin avec terrasse. Ce niveau comprend également un placard, une salle d'eau avec WC, et un garage de 20 m² avec coin buanderie. À l'étage, le palier dessert deux chambres, dont une avec dressing, ainsi qu'une seconde salle d'eau avec WC. L'extérieur offre un terrain clos de 289 m², comprenant un jardin avec terrasse et une aire de stationnement pouvant accueillir deux véhicules. Pour plus d'informations ou pour organiser une visite, contactez Florent Quevenne au 06 87 05 41 44. Les honoraires sont à la charge du vendeur. Les informations sur les risques auxquels ce bien est exposé sont disponibles sur le site Géorisques : www. georisques. gouv. fr. Réseau Immobilier CAPIFRANCE - Votre agent commercial (RSAC N°753 389 683 - Greffe de CAEN) Florent QUEVENNE Entrepreneur Individuel 06 87 05 41 44 - Réf. 925354.
Florent Quevenne vous propose à la vente cette maison jumelée par le garage, construite en 2017, idéalement située au calme d'une impasse, dans un petit lotissement, à moins de 5 minutes du périphérique de Caen et du centre commercial Leclerc d'Ifs. Au rez-de-chaussée, vous découvrirez une agréable pièce de vie d'environ 40 m², baignée de lumière grâce à sa double exposition Est et Ouest. Elle se compose d'un salon-séjour chaleureux, d'une cuisine aménagée et équipée, ainsi que d'un poêle à bois, le tout ouvert sur un jardin et une terrasse. Ce niveau comprend également un placard, une salle d'eau avec WC, et un garage de 20 m² avec coin buanderie. À l'étage, le palier dessert deux chambres, dont une avec dressing, ainsi qu'une seconde salle d'eau avec WC. L'extérieur offre un terrain clos de 198 m², comprenant un jardin, une terrasse et une aire de stationnement pouvant accueillir deux véhicules. Pour plus d'informations ou pour organiser une visite, contactez Florent Quevenne au 06 87 05 41 44. Les honoraires sont à la charge du vendeur. Les informations sur les risques auxquels ce bien est exposé sont disponibles sur le site Géorisques : www. georisques. gouv. fr. Réseau Immobilier CAPIFRANCE - Votre agent commercial (RSAC N°753 389 683 - Greffe de CAEN) Florent QUEVENNE Entrepreneur Individuel 06 87 05 41 44 - Réf. 927997.
À ifs sur un terrain de 360 m², maisons bebium vous propose de réaliser cette maison neuve bioclimatique prête à habiter d'une surface de 89.33 m² habitables avec 3 chambres. Maisons bebium vous propose les prestations suivantes : - maison clé en main de 2 à 4 chambres - pièce de vie vaste et lumineuse - baie vitrée de 3 m - cuisine aménagée ouverte sur le salon (coloris au choix) - salle d’eau équipée d'une douche à l'italienne - sol posé - peinture plafond terminé et 1ère couche sur les murs - wc suspendu et séparé - maison connectée et intelligente - volets roulants compris - mode de chauffage au choix - accompagnement dans toutes les démarches de votre projet. Toutes nos constructions sont conformes avec la nouvelle re 2020. Contactez caroline bigare au ou au 02 31 70 32 96 (maisons bebium - calvados - agence de mondeville). Prix avec assurance dommages-ouvrage comprise, hors vrd, terrain viabilisé, frais de notaire compris, frais divers non compris. Terrain sélectionné et vu pour vous sous réserve de disponibilité et au prix indiqué par notre partenaire foncier. Conditions de cette annonce et visuels non contractuels. Cette annonce a été créée et diffusée avec le logiciel vitahome.
À ifs sur un terrain de 360 m², maisons bebium vous propose de réaliser cette maison neuve bioclimatique prête à habiter d'une surface de 80.07 m² habitables avec 3 chambres. Maisons bebium vous propose les prestations suivantes : - maison clé en main de 2 à 4 chambres - pièce de vie vaste et lumineuse - baie vitrée de 3 m - cuisine aménagée ouverte sur le salon (coloris au choix) - salle d’eau équipée d'une douche à l'italienne - sol posé - peinture plafond terminé et 1ère couche sur les murs - wc suspendu et séparé - maison connectée et intelligente - volets roulants compris - mode de chauffage au choix - accompagnement dans toutes les démarches de votre projet. Toutes nos constructions sont conformes avec la nouvelle re 2020. Contactez caroline bigare au ou au 02 31 70 32 96 (maisons bebium - calvados - agence de mondeville). Prix avec assurance dommages-ouvrage comprise, hors vrd, terrain viabilisé, frais de notaire compris, frais divers non compris. Terrain sélectionné et vu pour vous sous réserve de disponibilité et au prix indiqué par notre partenaire foncier. Conditions de cette annonce et visuels non contractuels. Cette annonce a été créée et diffusée avec le logiciel vitahome.