Logo LSI sombre

Retour
Commerce 1 Pièce 162 m² à vendre à Solaro (20240)

Photo N° 2

Photo N° 3
3

Vente commerce 1 pièce 162 m² Solaro (20240)

532 300 €

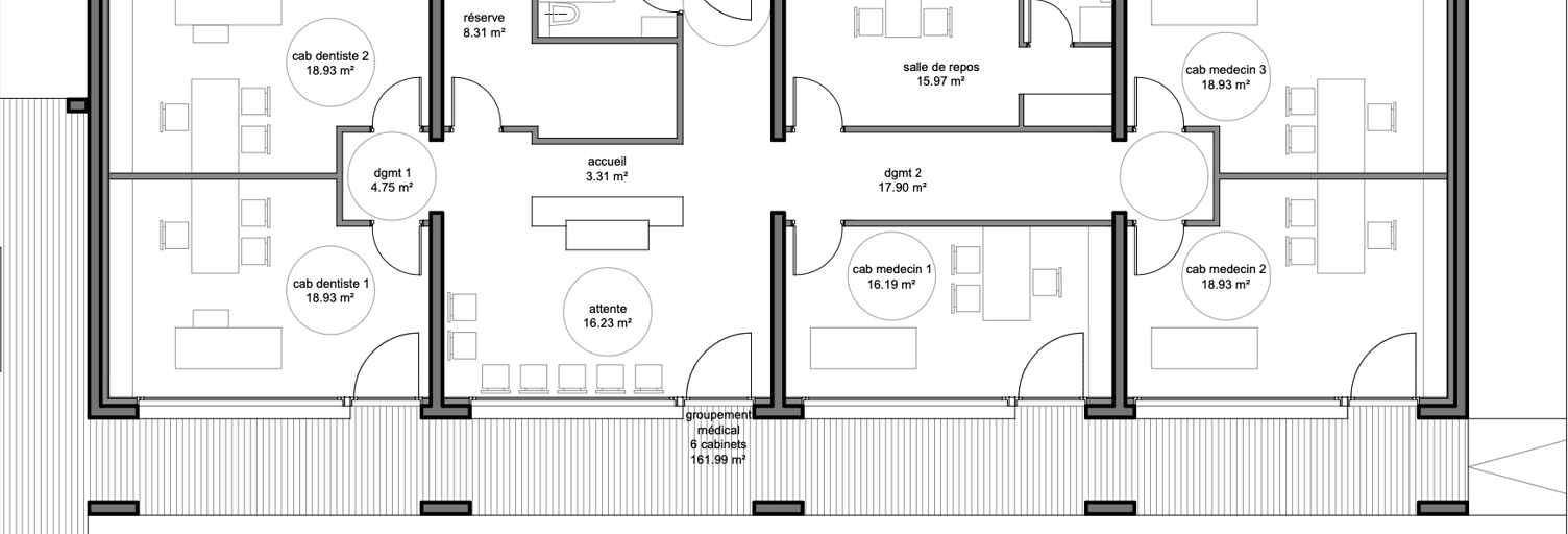
Local professionnel 162 m2 Idéal Pôle Médical ou Cabinet

À vendre, grand local professionnel neuf de 162 m² situé en rez-de-chaussée d'un bâtiment moderne, partageant un parking commun avec d'autres commerces et services. Conçu pour un pôle médical ou une activité libérale, il comprend : 5 espaces de consultation (idéal pour dentiste, généraliste, spécialiste. )une salle d'attente spacieuseun accueilune réserveun espace reposun wc pmr cet emplacement stratégique, en accès direct à la nationale, assure une visibilité optimale et une accessibilité idéale cette annonce vous est proposée par jean-mistral valentine - ei - norsac : 978 665 321, enregistré au greffe du tribunal de commerce de ajaccio comptoir immobilier de france - plus d'informations sur cif-immo. Com - « les informations sur les risques auxquels ce bien est exposé sont disponibles sur le site géorisques : ».

Caractéristiques

Les plus de cette annonce
  • Parking
Pièces
  • 1 pièce
Superficies
  • Surface habitable : 162 m²

Consommation énergétique et gaz à effet de serre

Bilan énergétique (DPE)
NC
Bilan gaz à effet de serre (GES)
NC

Géorisques

Les informations sur les risques auxquels ce bien est exposé sont disponibles sur le site Géorisques : www.georisques.gouv.fr

À propos de la copropriété

  • Nombre de lots de la copropriété : 15

A propos du prix de ce commerce

  • Prix : 532 300 € (soit 3 286 € / m²)

À propos de cette annonce

Mise en ligne:

Dernière mise à jour:

Référence de l'annonce: 93595

Comptoir Immobilier de France agence immobilière à Vergèze (30310)
Comptoir Immobilier de France
Afficher le numéro